"건축은 우리가 존재하는 방식에 대한 질문이다."— 피터 줌터 Peter Zumthor

![]() |
![]() |
![]() |
Histories Speak Through Traces / HARQUITECTES - Rehabilitation of the Vapor Cortès. Prodis 1933
하르키텍테스 - 바포르 코르테스 재생. 프로디스 1933
역사의 층위
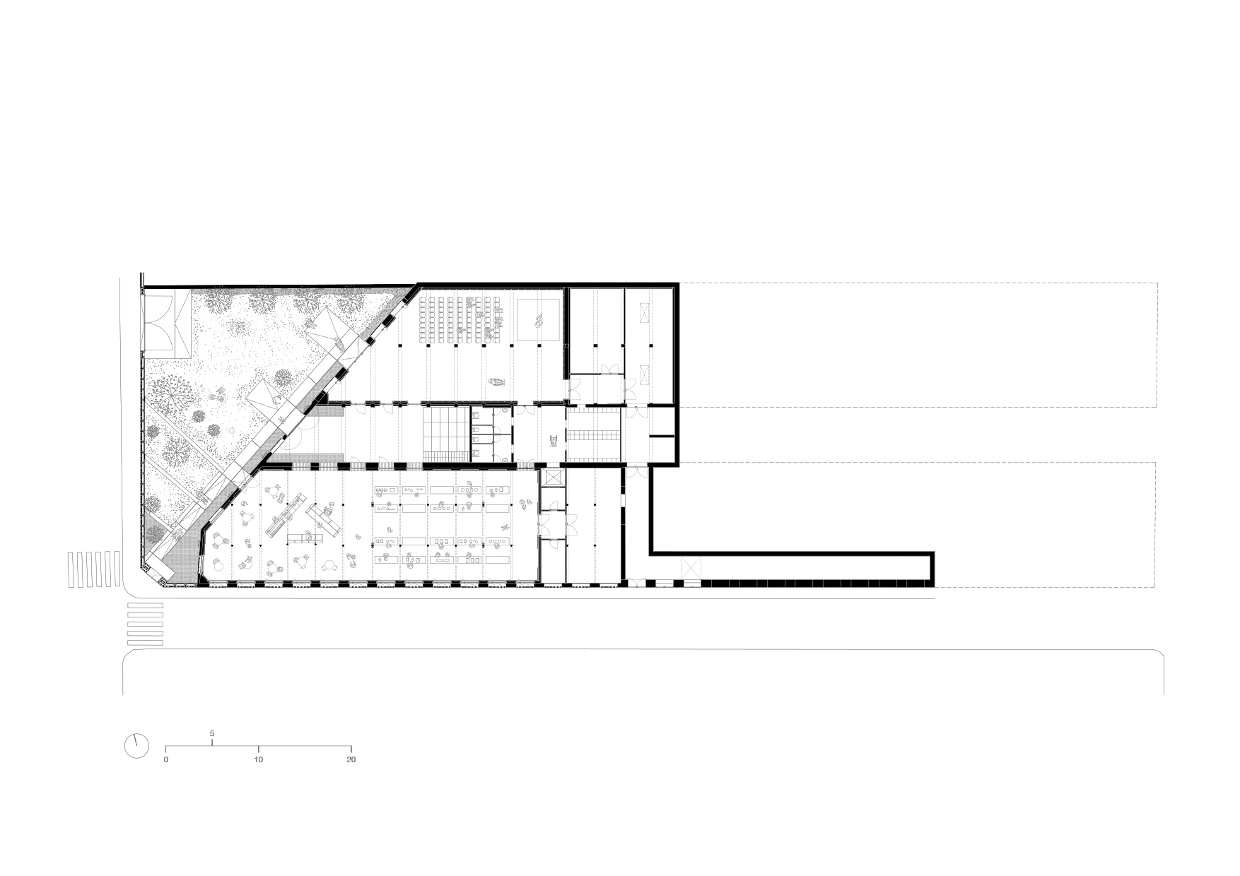
바르셀로나의 오래된 산업단지 한가운데, 19세기 말 증기공장 Vapor Cortès의 건물들이 서 있다. 붉은 벽돌로 쌓아 올린 내력벽이 건물의 외곽을 감싼다. 3미터마다 벽기둥이 서고, 그 사이로 창이 열린다. 규칙적인 리듬이 벽을 따라 이어진다. 12미터 너비의 공간을 가로지르는 목재 트러스가 지붕을 떠받친다. 세월이 흐르며 비가 새고 목재가 상했지만, 구조의 리듬은 여전히 벽기둥과 같은 간격으로 이어진다. 지붕은 나무 서까래와 가로대 위에 스페인 기와를 얹은 전통 방식이다.
두 창고 건물 사이로 원래 서비스용 거리가 있었다. 시간이 지나며 그 위로 금속 구조와 벽돌 볼트로 이루어진 임시 건물들이 들어섰다. 수십 년간 이곳에서 다양한 산업 활동이 이어졌고, 건물들은 변형되고 덧붙여졌다. 이 복합단지의 가치는 완벽한 보존 상태가 아니라 창고-거리-창고라는 도시 구조, 산업창고라는 원형적 성격, 그리고 변화가 켜켜이 쌓인 불완전함 자체에 있다.
최근 몇 년간 장애인재단 Prodis는 일하는 방식에 대한 근본적인 질문을 던지기 시작했다. 장애가 있는 사람들은 언제나 사회에서 자신의 자리를 찾기 어려웠다. 재단의 목표는 더 이상 단순히 생산적 기능을 제공하는 데 그치지 않는다. 이용자들이 사회와 직접 만나고, 그들의 일이 정서적 보람을 얻으며 더 큰 의미를 갖도록 센터를 도시에 점진적으로 열어가는 중이다.
통로, 도시가 되다
첫 번째 전략은 두 창고 사이 중앙 거리를 되찾는 것이다. 건축가는 두 창고 사이를 하나의 통로로 만든다. 건물이 운영되는 시간 동안 이 통로는 도시의 또 다른 길이 된다. 센터의 모든 동선과 활동이 여기서 시작한다. 통로가 지닌 공공의 성격은 센터를 도시에 여는 개념을 강화하고, 시민들이 같은 공간을 사용하며 이용자들과 자연스럽게 마주칠 수 있게 한다. 폐쇄되고 분리된 건물 대신, 이 내부의 보행 거리는 재단과 도시 사이에 훨씬 더 열린 관계를 만든다. 이용자와 시민 사이에 훨씬 더 직접적이고 열린 관계를 만든다.
중앙 건물의 바닥과 지붕을 비워내되 공장의 성격을 드러내는 파사드와 그것을 지지하는 보는 남긴다. 내부를 완전히 비워낸 흔적처럼, 비가 내리고 바람이 흐르는 여느 거리처럼, 동시에 벽과 가로보에 여전히 새겨진 역사를 간직한 채로. 지붕을 선택적으로 철거해 드러난 거리, 하지만 최근의 역사가 무엇이었는지를 계속 환기시키는 거리.
통로의 양쪽 끝을 연결하고 도시의 두 부분 사이 높이 차이를 해결하기 위해 마지막 구간에 계단 광장을 만든다. 높이 차이를 해결하고 아래층 보조 프로그램으로 접근을 허용한다. 이 계단은 결국 통로에 도시적이고 문화적인 차원을 부여하며, 단순히 통과하는 공간이 아니라 머무는 장소가 되도록 초대한다.
열린 구조
두 개의 주요 창고를 따라 센터의 여러 공간들이 배치된다. 내부 거리에서 직접 접근하지만 동시에 내부에서도 서로 연결된다. 작업실, 교육실, 주방, 식당 같은 주요 용도들과 화장실, 회의실, 창고 같은 보조 공간들을 결합한 활동들이다. 동시에 장애 정도에 따라 다른 유형의 이용자들에게 대응한다.
거대한 공간 안에서 영역을 나누어야 할 필요성과 동시에 기존 트러스를 보강해야 할 필요성 때문에, 공간 조직과 위계는 이 구조 보강을 바탕으로 이루어진다.
기존 트러스에 수직으로 새로운 보를 추가한다. 원래의 단방향 시스템이 양방향 구조로 전환된다. 새 보들이 기존 트러스의 경간을 줄이고 그것들을 보존할 수 있게 한다. 새것과 옛것 사이의 교차점은 매우 섬세한 공간 패턴을 만든다. 원래의 구조적·재료적 논리와 같은 맥락을 따르며, 공간에 위계를 부여하되 원래의 성격을 잃거나 거스르지 않는다.
기존 구조 위에 겹쳐진 새로운 구조는 폐쇄된 프로그램 배치에도 활용된다. 그것들은 커다란 기둥이 되고, 동시에 각 주요 공간 중앙에 천창이 생긴다. 불투명한 상자들은 폐쇄된 프로그램을 수용하며 동시에 새 보의 하중을 받는다. 새 보는 다시 원래 트러스의 하중을 받는다. 기존 트러스와 새 보가 만나는 교차점에서 빛의 상자가 나타난다. 주요 공간의 중심을 밝히는 천창들이다.
목재의 논리
이 프로젝트는 현재 원래 건축을 특징짓는 목재-목재 작업을 확장한다. 여러 시스템의 중첩, 디딤판-서까래-판금이 서로 다른 치수의 나무 부재들이 섬세하게 얽힌 특유의 질감을 만든다. 새로운 보, 새로운 폐쇄 상자, 새로운 천창은 모두 같은 목재-목재 중첩의 성격을 따른다. 마치 지붕을 구성하던 같은 구조 시스템이 확장되어 건물의 새로운 필요까지 해결하는 것처럼.
새 지붕은 외부 마감으로 스페인 기와를 유지하고 원래의 서까래와 가로대를 보존하지만, 기와 대신 더 가벼운 솔루션으로 교체한다. 현재의 에너지 기준에 맞는 단열이 가능해진다. 동시에 지붕의 아래층은 다공성 막으로 마감된 음향 흡수재로 기능한다. 막은 나무 가로대 사이에 고정된다.
새 지붕의 여러 층위는 천창도 구성한다. 지붕 솔루션이 펼쳐지고 가로대와 마감재들이 수직으로 배치되며 빛의 유형과 천창의 존재감을 만드는 데 기여한다.
빛이 사람을 비추다
공간들의 서로 다른 규모와 주요 공간과 보조 공간 사이의 서로 다른 관계는 연결된 공간들의 시퀀스를 만든다. 건물의 큰 스케일을 이해할 수 있게 하면서 동시에 전체 안에서 더 친밀한 구석과 공간들을 만든다. 천창은 시선을 주요 공간에 집중시키고 특히 사용과 사람들에게 집중시킨다. 중앙에서 쏟아지는 천정광은 일어나고 있는 일을 강조하고, 건축은 좀 더 절제된 역할을 맡는다.
빛과 구조는 환경과 강렬한 유대를 맺으며 우리가 세계의 일부임을 느끼게 한다. 중력의 힘을 느끼거나 자연광 질의 변화를 느끼는 것은 우리를 더 정서적인 상황으로 이끈다. 이 기관이 필요로 하는 것은 바로 이 실존적 차원을 재발견하는 일이라고 확신한다.
새로운 목재 구조 개입 외에도, 나머지 개입들은 매우 절제되어 건물의 원래 본질과 모든 흔적과 변화를 보존하려 한다. 파사드를 단열하기 위해 내부 덧대기를 선택했고, 파사드의 리듬을 따르는 노출 세라믹 벽 패널로 마감했다.
Write by Claude & Jean Browwn



























The new Prodis headquarters is located in old industrial buildings that were originally part of the Vapor Cortès. The buildings are made up of the traditional perimeter structure of ceramic brick load bearing walls following a regular rhythm of pilasters and openings every 3 meters. The 12-meter span of the buildings is covered by wooden trusses -some quite affected by roof leaks- that follow the same rhythm as the pilasters. The roof also follows the traditional structure of wooden straps and battens topped with Arabic tiles.
Between the two buildings, the original service street has been built over the years with hybrid constructions of metal structure and ceramic vault. As a result of the industrial activities that have been carried out there, all the buildings have been transformed and altered over the years and therefore the main value of the complex lies in its urban structure (warehouse-street warehouse), in its archetypal condition as an industrial warehouse and in its inherent imperfection as a product of the history of its transformations and the accumulated memory.
For some years now, the Prodis foundation has been initiating a transformation of its conception of how to work with its users. People with disabilities have always had difficulty finding their place in society. The foundation's objective is no longer just to give them a useful function with a certain productive performance, but rather a progressive opening of its centres towards more empathetic functions is being initiated where users begin to interact directly with society and where their work has a more emotional reward and its usefulness takes on more meaning.
The first strategy is the recovery of the central street between the two naves. We propose a kind of passage that during the building's operating hours will become like another street in the city from where all the circulations and activities of the centre are organized. The public condition of this passage reinforces the idea of opening the centre to the city and allows citizens to use the same spaces and interact with users. Instead of a closed and separate building, this interior pedestrian street will allow a much more porous relationship between the entity and the city. A much more direct and open relationship between users and citizens.
It is proposed to empty the floors and roof of the central body while maintaining the facades that give it its industrial character and the beams that stabilize them. Like a vestige completely emptied from the inside, where it rains and the air flows like any street but at the same time preserving all its history still present in its walls and transverse beams. A street that emerges from the selective demolition of the roofs but that continues to evoke what its recent history had been.
In order to connect the two ends of the passage and solve the difference in elevation between the two parts of the city, a staircase staircase appears in the final section that solves the unevenness and allows access to the complementary programs on the lower level. This staircase ends up giving an urban and cultural dimension to the passage and invites it to be not only a space for passage but also a place to stay.
Along the two main (and original) naves, the different spaces of the centre are organized, accessed directly from the interior street but at the same time interconnected internally. These are activities that combine main uses such as; workshops, training classrooms, kitchen or dining rooms with more complementary spaces such as; bathrooms, meeting rooms or warehouses and that at the same time respond to different types of users according to the level of their disabilities.
The need to subdivide spaces within an enormous space and at the same time the need to reinforce the existing trusses allows an organization of the spaces and their hierarchies based on these structural reinforcements.
New beams perpendicular to the existing trusses convert the original unidirectional system into a bidirectional structure where the new beams reduce the light of the existing ones and allow them to be preserved. These intersections between new and old structures create very subtle spatial patterns that follow the same constructive and material logic as the original and that allow the space to be hierarchized without losing or going against its original nature. These new structural orders superimposed on the existing ones also help us to place the most closed programs which will become great pillars- and at the same time central skylights in each main space that qualify and characterize them. The opaque boxes house the closed programs while also taking on the weight of the new beams that in turn take on the weight of the original trusses. At the intersection between the existing trusses and the new beams, the light boxes appear, skylights that illuminate the centre of the main spaces.
The project attempts to extend the wood wood work that currently characterizes the original construction where the overlap between systems (tread-strap-sheet metal) creates a characteristic intricate texture of wooden slats of different dimensions. The new beams, the new closed boxes and the new skylights will follow the same nature of wood-wood overlap as if the same constructive system that configured the roof were extended to also solve the new needs of the building.
The new roof continues to have an exterior finish of Arabic tiles and retains the original straps and battens but replaces the tiles with a lighter solution that allows for thermal insulation solutions according to current energy requirements while allowing the lower layer of the roof to function as an acoustic absorber finished with a porous veil held between the wooden battens.
The different layers of the new roof also configure the skylights, making the roof solution unfold and the battens and finishes -placed vertically- help us configure the type of light and the presence of the skylight.
The different dimensions of the spaces and the different relationships between main and secondary spaces create a sequence of linked spaces that allow us to understand the large size of the buildings but at the same time manage to create more domestic corners and spaces within a whole. The skylights help to focus attention on the main spaces and in particular to focus on use and people. The central and zenithal natural light emphasizes what is happening and the architecture takes on a more discreet role. Light and structure establish an intense bond with the environment and somehow help us feel part of the world. Feeling the force of gravity or the changes in the quality of natural light transport us to a more emotional situation. We are convinced that this is an institution that needs to rediscover this existential dimension.
Beyond the new structural interventions with wood, the rest of the interventions try to be very discreet in order to preserve the original essence of the building and all its marks and transformations. To isolate the facades, an interior transposal has been chosen, finished with exposed ceramic wall panels that follow the rhythm of the facade.
from archdaily


