건축은 그 시대의 의지를 공간으로 번역한 것이다.-미스 반 데어 로해

![]() |
![]() |
![]() |
버던트 리지스: 당백호의 화폭을 현대적 공간으로 번안하다 Wutopia Lab-Verdant Ridges
제3의 길, 재생을 넘어선 재해석
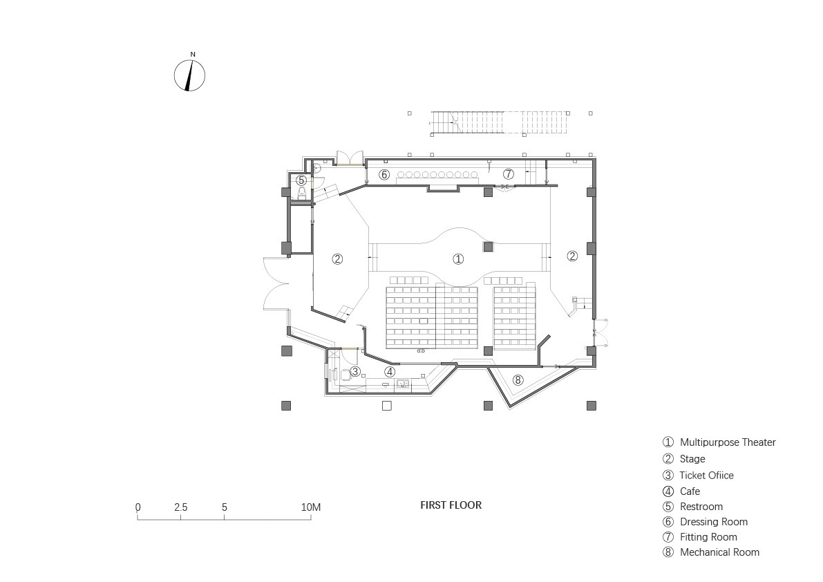
신광 견직물 공장이 있던 자리가 새로운 서사를 품은 복합 문화 공간으로 다시 태어났다. 리노베이션을 마친 5번 건물은 이제 수저우 스타일의 무대 공연과 중규모 회의를 아우르는 다목적 극장으로 기능한다. 건축 리노베이션은 보통 두 가지 갈림길에 선다. 기존 구조를 완전히 뜯어고치거나, 원형을 최대한 보존하거나. 하지만 우토피아 랩은 이분법적인 선택지에서 벗어나 제3의 길을 모색했다. 우리는 단순히 옛 건물의 역사적 껍질을 보존하는 데 그치지 않고, 명나라 시대 예술가 당백호의 드라마틱한 삶을 모티프 삼아 이 공간에 새로운 예술적 숨결을 불어넣었다.
당백호의 색채와 붓이 된 기둥
당백호는 산수화와 인물화의 거장이었다. 전통적인 산수화가 먹의 농담을 살린 단색의 세계였다면, 그의 인물화는 다채로운 색채와 생기로 가득했다. 우리는 과감한 색채 활용이라는 스튜디오의 장기를 살려, 당백호 인물화의 화려한 색감을 그의 산수화 풍경에 덧입혔다. 이는 고전적 우아함을 계승하면서도 현대적 감각으로 치환한 새로운 시각 언어다. 특히 동쪽 입면에 우뚝 선 기둥은 붓을 거꾸로 세운 듯한 독특한 조형미를 드러내는데, 이는 단순한 구조물을 넘어 과거의 예술적 유산을 상징하는 하나의 기념비가 된다.
시공간을 잇는 공(工)자형 무대
맞춤형으로 디자인된 무대는 전형적인 극장 구성을 탈피하여 과감한 공(工)자형 배치를 택했다. 이 독특한 레이아웃은 현재와 명나라 말기라는 두 시공간이 교차하는 듯한 극적인 분위기를 자아낸다. 관객은 무대로 들어서는 순간, 마치 타임 터널을 걷는 듯한 시공간의 전이를 경험하며 당백호의 전설적인 삶 속으로 빠져든다. 수저우의 역사 보존 규정에 따라 철거할 수 없었던 무대 중앙의 기둥은 검은색 목재 패널로 마감해 디자인의 일부로 자연스럽게 녹여냈다. 또한, 좌석 일부를 스탠딩 존으로 변경할 수 있게 설계하여 다양한 공연 형식에 유연하게 대응하도록 했다.
수묵의 실루엣과 물성의 대비
1층 공간은 굽이치는 수묵 산수화의 실루엣이 배경을 이루며 극장 특유의 몽환적인 분위기를 고조시킨다. 좌측에는 매표소와 바가, 우측에는 분장실이 자리해 기능적 효율성을 더했다. 2층에는 조정실을 배치하고, 북쪽 외부 계단을 통해 옥상으로 동선이 이어지도록 했다. 거친 콘크리트 구조와 새로 추가된 중층, 그리고 장식적 요소들은 서로 다른 마감 방식을 통해 날것의 물성과 정제된 질감 사이의 극적인 대비를 보여준다. 기계 설비와 무대 장치, 조명 계획을 정교하게 통합하여 중층 공간에서도 적절한 층고를 확보함으로써, 기능성과 공간적 조화라는 두 마리 토끼를 잡았다.
금속으로 그려낸 산수, 경계를 허물다
건물 전면부의 풍경은 금속 메쉬가 그려낸다. 이는 뒤편에 자리한 견고한 금속 패널의 산세와 강렬한 대비를 이루며 아스라한 산의 형상을 완성한다. 입구에 조성된 산 형태의 여백은 극장의 시각적 구심점이자, 공연의 세계로 진입하는 전이 공간을 한 폭의 그림처럼 담아낸다. 인접한 소방서와의 관계를 고려해 신축 구조물을 북쪽으로 물러나게 배치함으로써 회색 톤의 전이 공간을 형성했고, 방문객은 자연스럽게 처마 밑 상호작용 공간으로 이끌린다. 산봉우리 품에 안긴 듯한 2층 테라스는 잠시 현실에서 벗어날 수 있는 도피처가 되어준다. 방문객은 건물을 마주하는 첫 순간부터 과거와 현재가 얽힌 거대한 연극 무대 위로 초대되는 것이다.
디테일이 완성하는 리듬
건물을 감싸는 금속 커튼월은 색상과 두께가 다른 네 가지 패널로 구성된다. 모서리 부분의 내외부 연결을 매끄럽게 처리하기 위해, 시공 과정에서 V자형 패널을 전략적으로 활용해 복잡한 접합부 디테일을 풀어냈다. 지붕을 감싸는 사다리꼴 금속 메쉬는 입면의 산세가 겹겹이 쌓인 윤곽을 은유적으로 확장하며, 건물의 물리적 경계를 넘어 주변으로 뻗어 나가는 리듬감 있는 풍경을 완성한다.
Write by Claude & Jean Browwn


















The site was originally home to the Xinguang Silk Weaving Factory. The renovated Building No. 5 has now been transformed into a versatile theater, seamlessly integrating Suzhou-style stage performances with medium-sized conferences. In architectural renovation, the common approaches typically fall into two categories: completely redesigning parts of the structure or preserving its original form as much as possible. Wutopia Lab seeks to break free from this binary and explore a new path. Inspired by the dramatic life of Tang Bohu, we go beyond merely preserving the historical depth of the old building—we breathe new artistic life into it.
Tang Bohu was a master of landscape and figure painting. Traditional landscape paintings were often monochromatic, while figure paintings were rich in color and vibrancy. Drawing from Wutopia Lab's expertise in bold use of color, we have infused the vivid hues of Tang Bohu's figure paintings into his landscapes, creating a new visual language—one that honors classical elegance while embracing modernity. You might notice a unique column on the east side, resembling an inverted paintbrush. More than just a structural element, it stands as both a subtle monument and a symbol of artistic legacy.
The custom-designed stage adopts an I shaped (工) layout, breaking away from conventional theater configurations to create a temporal interplay between the present and the late Ming dynasty. Audiences step into what feels like a time tunnel, experiencing Tang Bohu's legendary life firsthand. Due to Suzhou's historic preservation regulations, the central column of the stage could not be removed. Instead, it has been cladded in black wood paneling, seamlessly integrating it into the design. Certain seating areas have been adapted into standing zones, allowing for greater flexibility to accommodate different performance needs.
On the ground floor, undulating ink wash mountain silhouettes form a backdrop, reinforcing the theatrical atmosphere. To the left, a ticket office and bar provide functional amenities, while the right houses the dressing rooms. The second floor features a control room, with an external staircase on the north side leading to the rooftop. We employed distinct treatment strategies for the existing concrete structure, new mezzanine, and decorative elements, accentuating the contrast between raw and refined textures. The careful integration of mechanical systems, stage equipment, and lighting layouts ensures that the mezzanine maintains optimal ceiling height, preserving both functionality and spatial harmony.
The foreground landscape is shaped by metal mesh, crafting an ethereal mountain silhouette that contrasts sharply with the solid, metal clad mountain forms behind it. At the entrance, a negative space of a mountain becomes the theater's visual focal point, framing the transition into the performance realm. Due to its proximity to a fire station, the new structure is set back to the north, creating a gray-toned threshold space that naturally leads visitors into the interactive area beneath the eaves. The second-floor terrace, nestled among the peaks, offers a moment of retreat—an illusion of standing amidst the mountains—immersing visitors in a theatrical interplay of past and present from the moment they first encounter the building.
The metal curtain wall employs four variations of metal panels in both color and thickness. To unify the transitions at inner and outer corners, V shaped panels were strategically used during construction, resolving complex junction details. Meanwhile, the roof is framed by a trapezoidal metal mesh, subtly echoing the layered contours of the mountain façade, extending its rhythm beyond the building's edge.
FROM archdaily


