태양은 건물의 측면에 닿기 전까지는 자신이 얼마나 위대한지 알지 못했다.-루이스 칸 (Louis Kahn)

![]() |
![]() |
![]() |
미완의 대지, 빛으로 빚은 영적 안식처 TAOA - Hangzhou Empathy Museum
대지의 기억: 미완성에서 시작된 진화
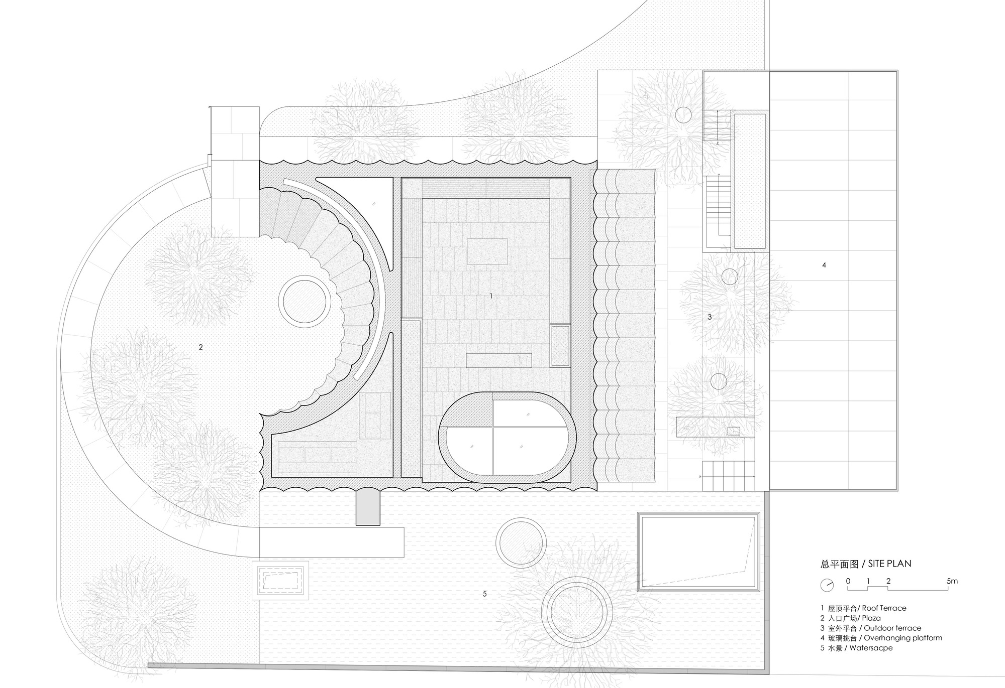
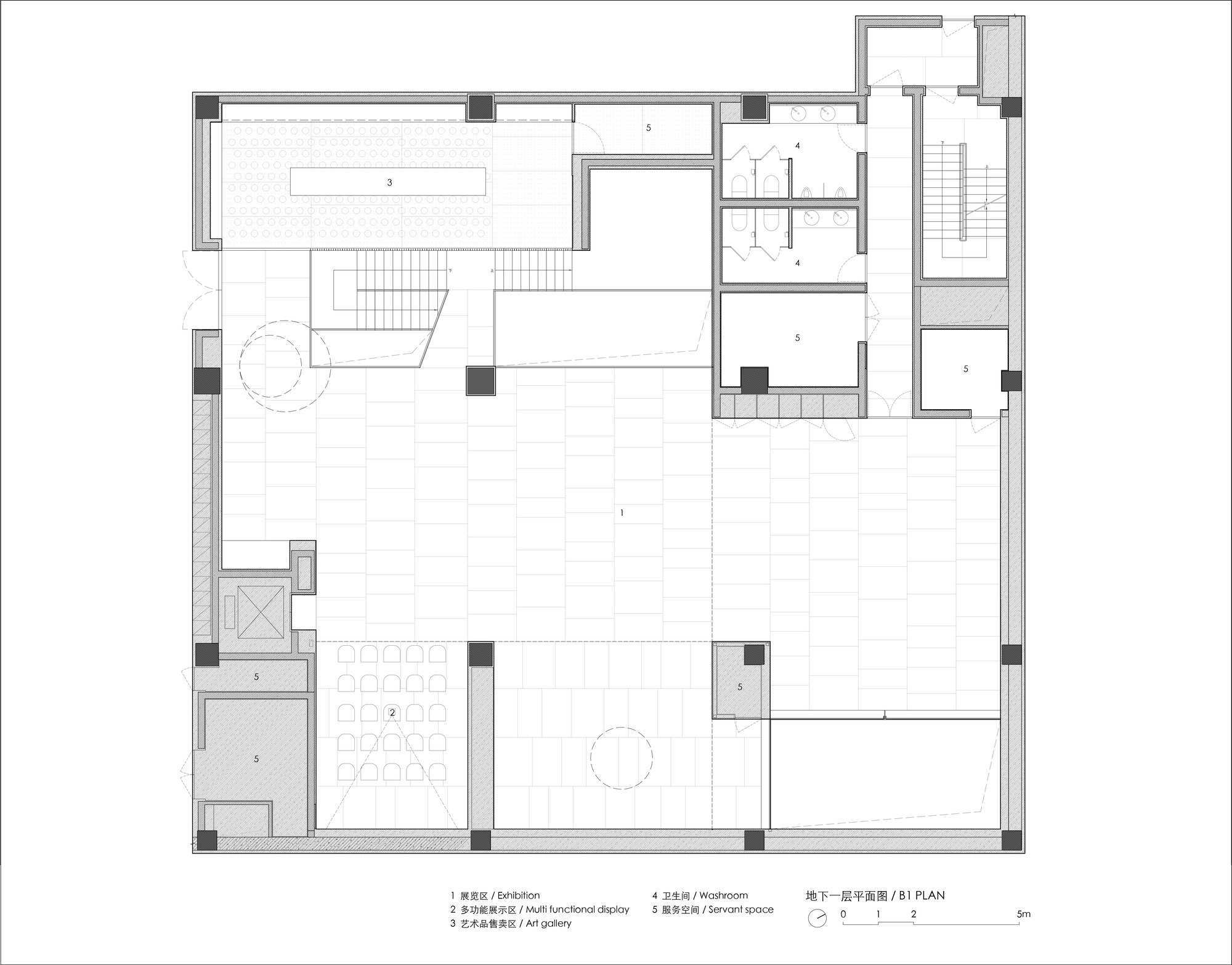
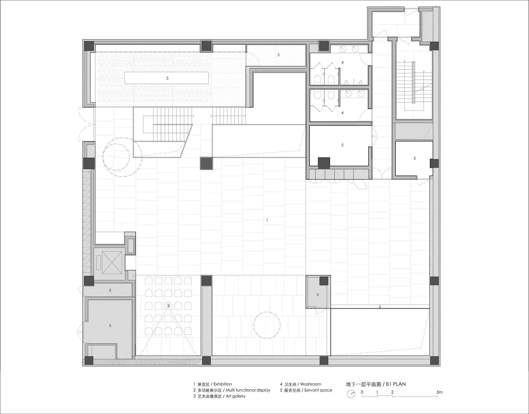
이 커뮤니티 미술관은 멈춰버린 대지의 시간을 다시 흐르게 만든 변혁적인 프로젝트입니다. 프로젝트는 완공된 지하 주차장과 뼈대만 남은 지상 3층 구조물이라는 까다로운 제약 위에서 시작되었습니다. 건축가는 미술관의 기능을 담기 위해 지하 공간을 전시실로 바꾸고, 이를 지상과 하나로 연결했습니다. 이는 내부의 필요가 건물의 겉모습을 결정짓는, 이른바 '인사이드-아웃(Inside-out)'의 건축입니다. 기존 지하 구조의 한계를 그대로 받아들이면서도, 원통형 매스가 큐브를 과감히 베어 문 듯한 형태를 통해 건물은 완전히 새로운 생명체로 다시 태어났습니다.
물성의 미학: 껍질을 벗고 드러낸 빛
강물이 흐르는 도시의 대로변, 건물은 마치 껍질을 벗겨낸 듯 속살을 드러내며 도시를 향해 열려 있습니다. 건물을 감싼 곡면 스테인리스 스틸 패널은 소재 자체가 가진 팽팽한 힘 덕분에, 내부 지지대 없이도 물결치듯 리듬감 있는 아름다움을 보여줍니다.
빛이 금속의 곡면을 타고 흐를 때, 건물은 섬세한 반사를 일으키며 조각품처럼 부드러운 표정을 짓습니다. 북쪽 벽면의 타공 패널을 통과한 빛은, 안에서 바라보는 도시의 풍경을 흐릿하고 몽환적인 한 폭의 추상화처럼 바꿔놓습니다. 2층의 외벽은 살짝 들り올려져 1층의 처마를 지탱하는 구조적인 역할을 하는 동시에, 마치 우리 전통 건축의 처마 아래 있는 듯한 아늑함을 선사합니다.
공간의 시퀀스: 빛의 협곡을 지나
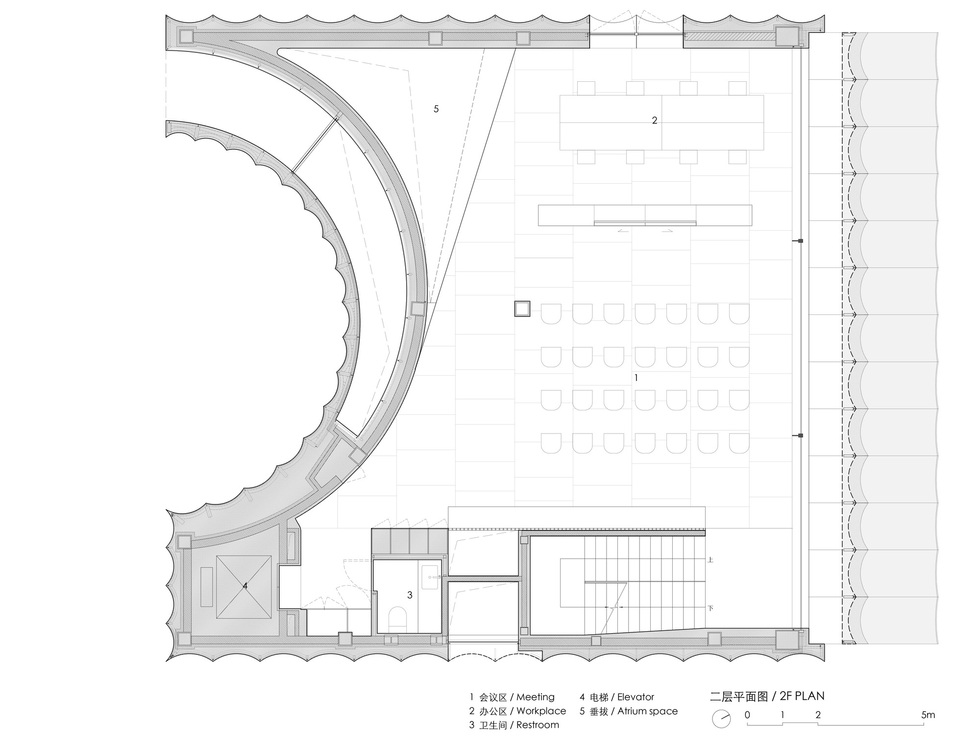
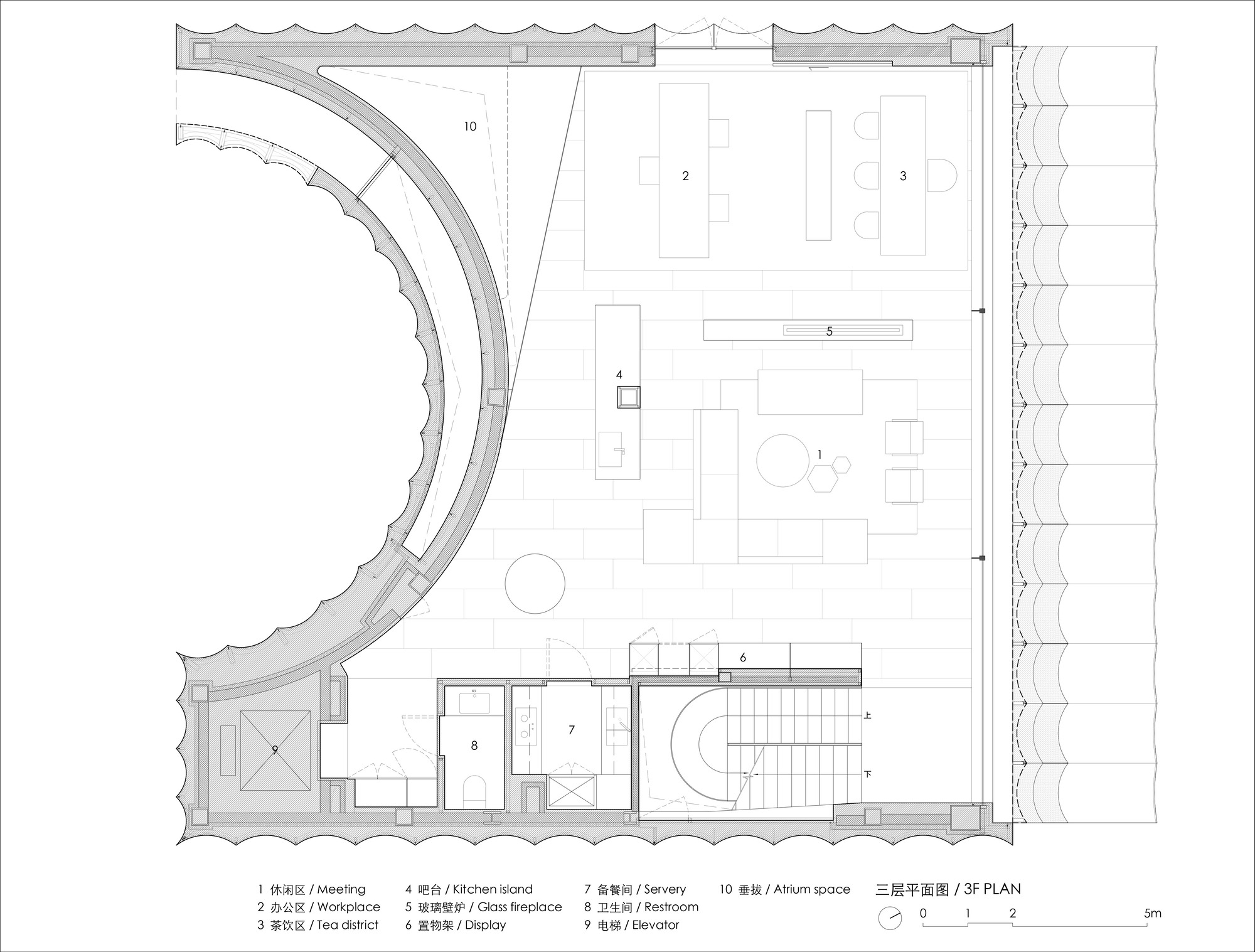
미술관의 입구는 둥글게 파인 형태로 방문객을 자연스럽게 끌어당깁니다. 천장의 틈새로 쏟아지는 빛은 3층 높이의 거대한 '빛의 협곡'을 비추며, 방문객이 일상의 소란을 잊고 예술의 세계로 진입하도록 의식의 흐름을 바꿔놓습니다. 1층은 북쪽으로 시원하게 트여 있어, 건물과 도시의 경계를 허물고 풍경을 안으로 들입니다. 모서리에 위치한 수직의 빈 공간(Void)은 층과 층을 연결하며, 위에서 떨어지는 빛으로 성스러운 분위기를 자아냅니다.
통합과 가치: 일상에 스며든 예술
계단은 벽을 타고 오르며, 타공 패널 사이로 오가는 사람들의 움직임을 도시에 슬며시 드러냅니다. 건축가는 두꺼운 바닥판을 덜어내어 빛과 자연을 지하 깊은 곳까지 끌어들였고, 덕분에 지상과 지하는 단절되지 않고 하나의 숨결로 이어집니다. 예술은 높고 거창한 신전에 갇혀서는 안 됩니다. 이 미술관은 정교한 질서 속에서, 번잡한 도시인들에게 고요한 영혼의 안식처를 내어주고 있습니다.
Write by Claude & Jean Browwn
















































This community art museum is a transformative renovation based on an unfinished project, originally consisting of a completed underground parking garage and a planned three-story above ground structure. To meet the museum's functional requirements, part of the underground space was converted into exhibition halls and seamlessly connected to the levels above. This project represents an "inside-out" creation: the evolution of internal needs reshaped the original structure and facade, allowing it to metamorphose into an entirely new entity while strictly adhering to the planning prototype of "a cube truncated by a right cylinder" and the constraints of the existing subterranean structure.
Facing a river and adjacent to a major urban artery, the side of the building toward the city is "peeled open," creating a shell that is simultaneously independent and open. The entire exterior is clad in curved stainless steel panels. This design utilizes the material's inherent tension to eliminate the need for internal purlins, resulting in a pure, rhythmic aesthetic.
As light hits the curved metal, it produces delicate reflections that lend a sculptural tenderness to the building. On the north facade, the perforated panels filter the light; from the interior, the urban landscape is transformed into a blurred, abstract scroll. The second-story facade is lifted at a specific angle to act as a structural tie for the first-floor canopy, creating a profile that evokes the sheltered feeling of traditional eaves.
The entrance is tucked into a semi circular concave, utilizing the centripetal nature of the form to better connect with the community. Natural light pours in through a top crevice, illuminating a three-story "spatial canyon" that guides visitors through a mental transition from the community to the world of art, emphasizing a palpable human scale. The ground floor opens toward the north, merging with a cantilevered platform to dissolve the boundaries between the building and the city. At the building's corner, a vertical void connects all three above-ground levels, not only resolving the awkwardness of the original sharp-angled space but also creating a spiritual atmosphere as light descends from above.
The staircase climbs along the sidewall, with key fragments of its path visible through the perforated panels, showcasing the building's internal vitality to the city. To establish a connection between the subterranean galleries and the world above, portions of the structural slabs were removed, introducing natural light and landscape into the basement. This integrates the above ground and underground spaces into a continuous, fluid whole. Art should not be confined to "temples" but should become an integral part of daily life. Through its precise and clear order, this museum carves out a serene spiritual sanctuary within the bustling modern metropolis.
from archdaily


