
António Costa Lima Arquitectos-Residential Building by the Aqueduct
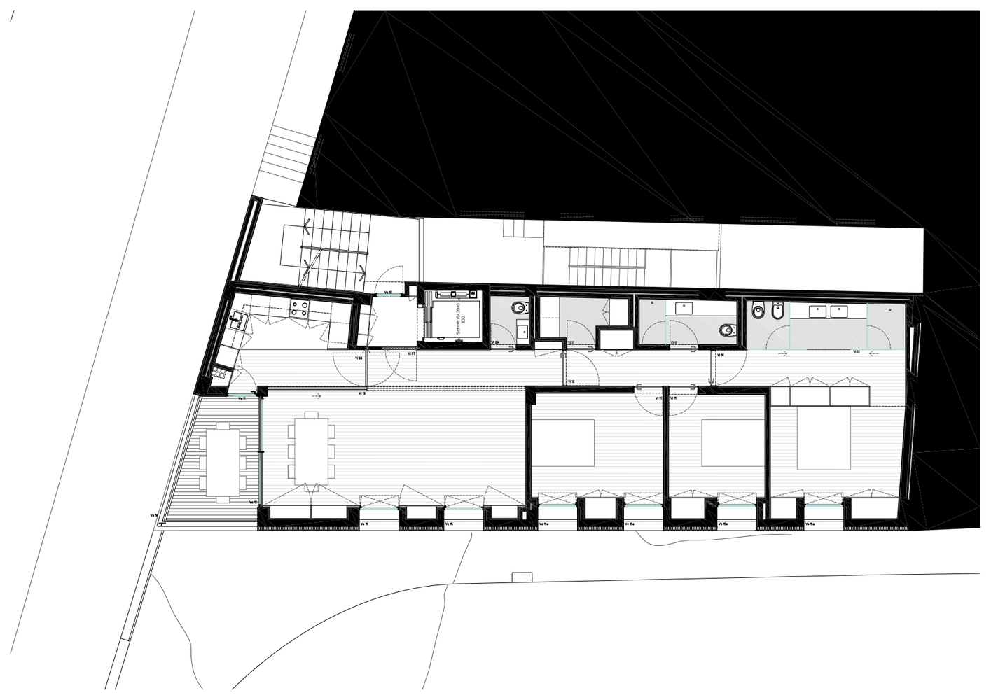
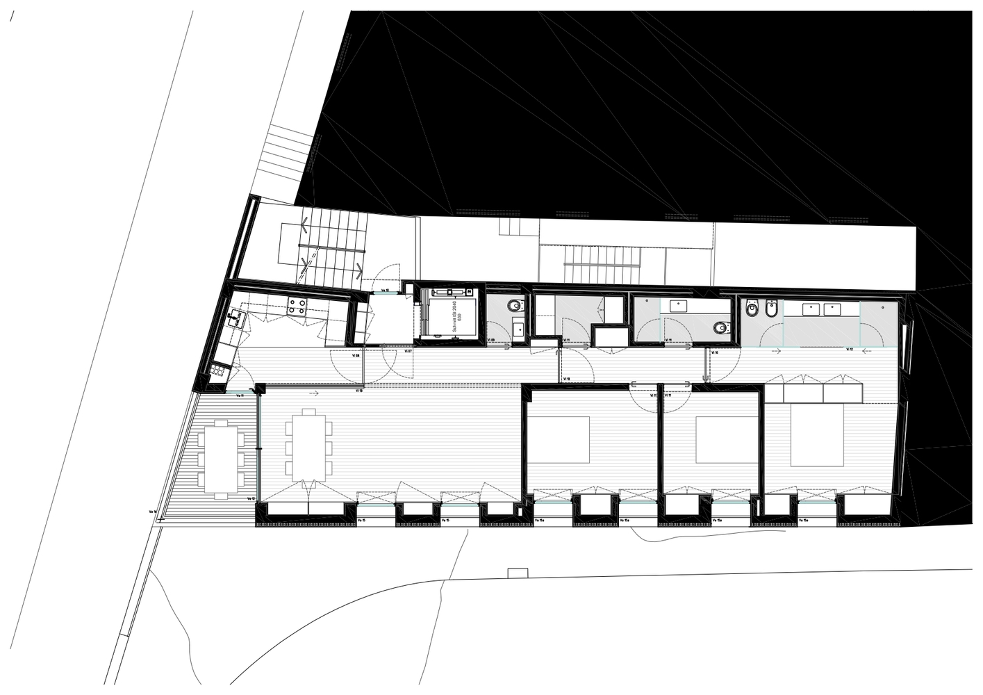
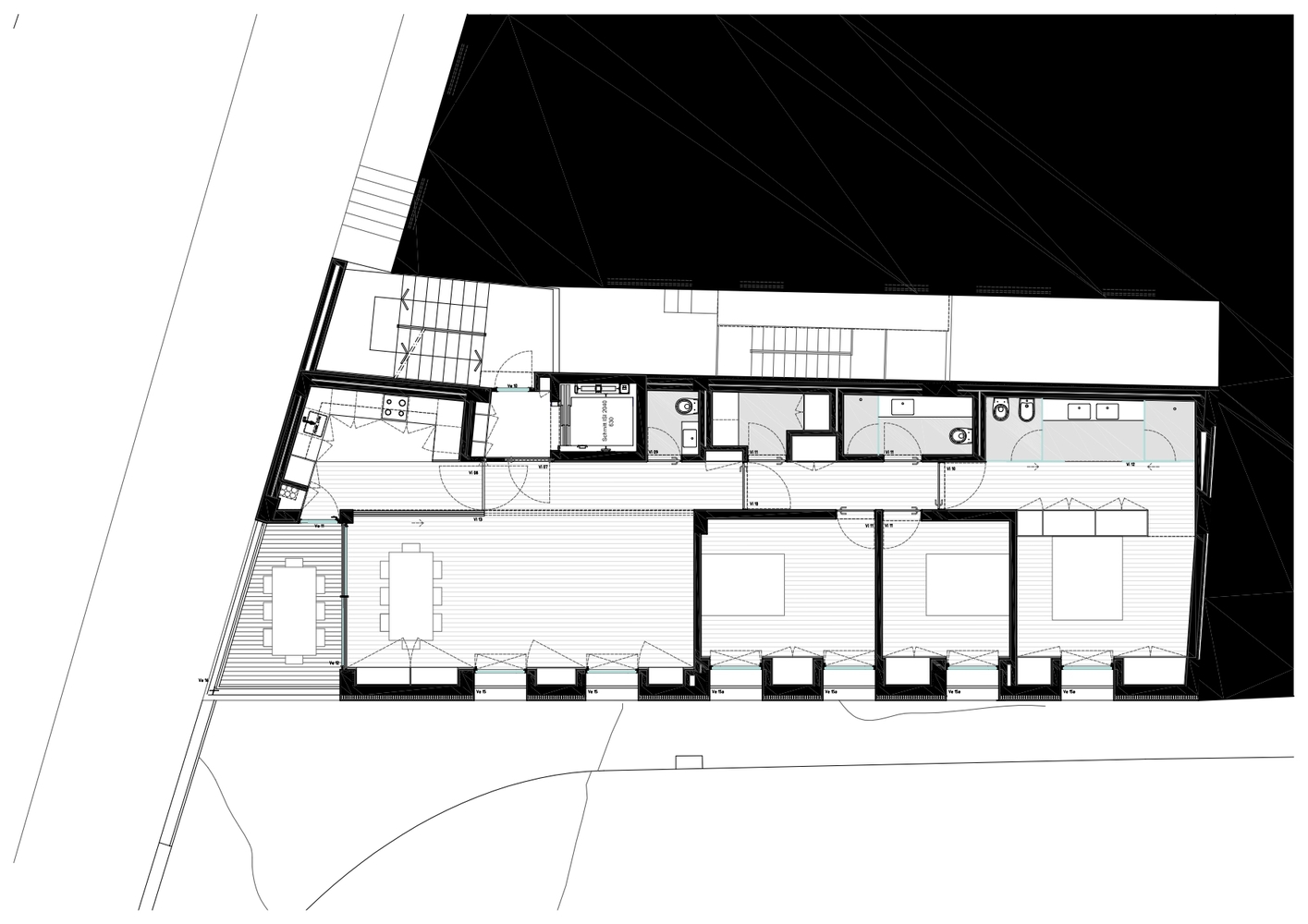
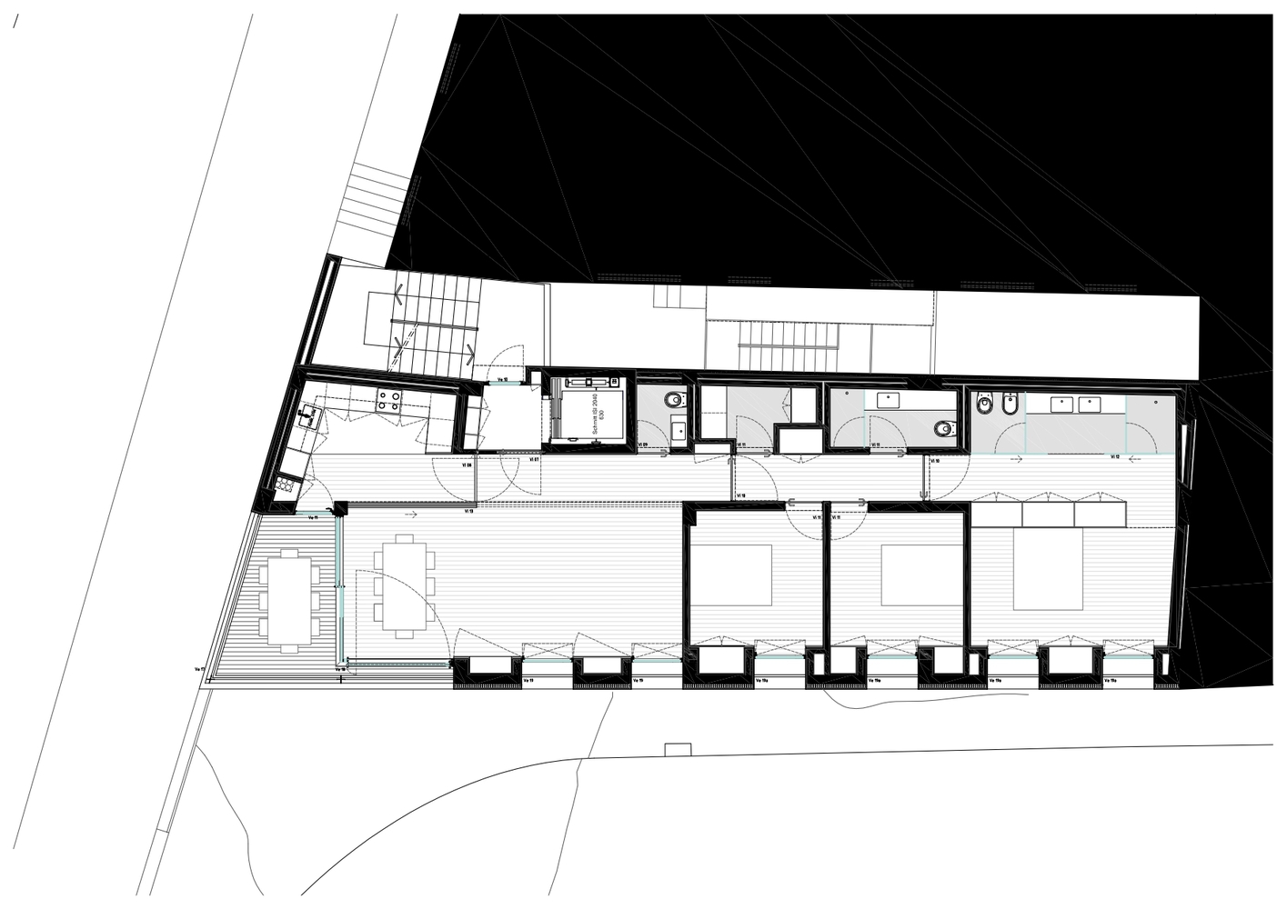
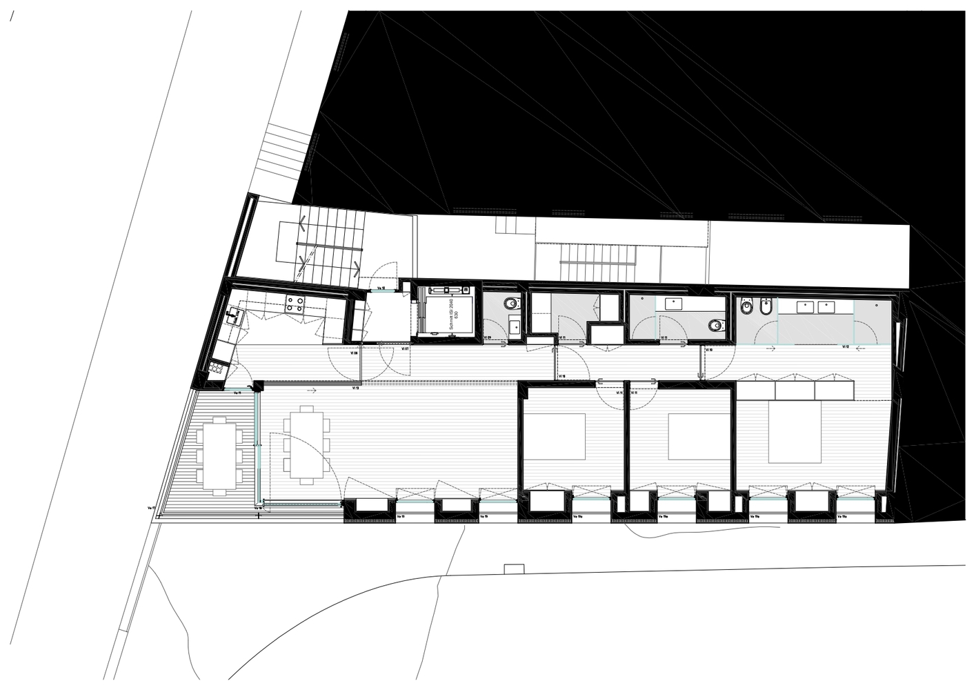
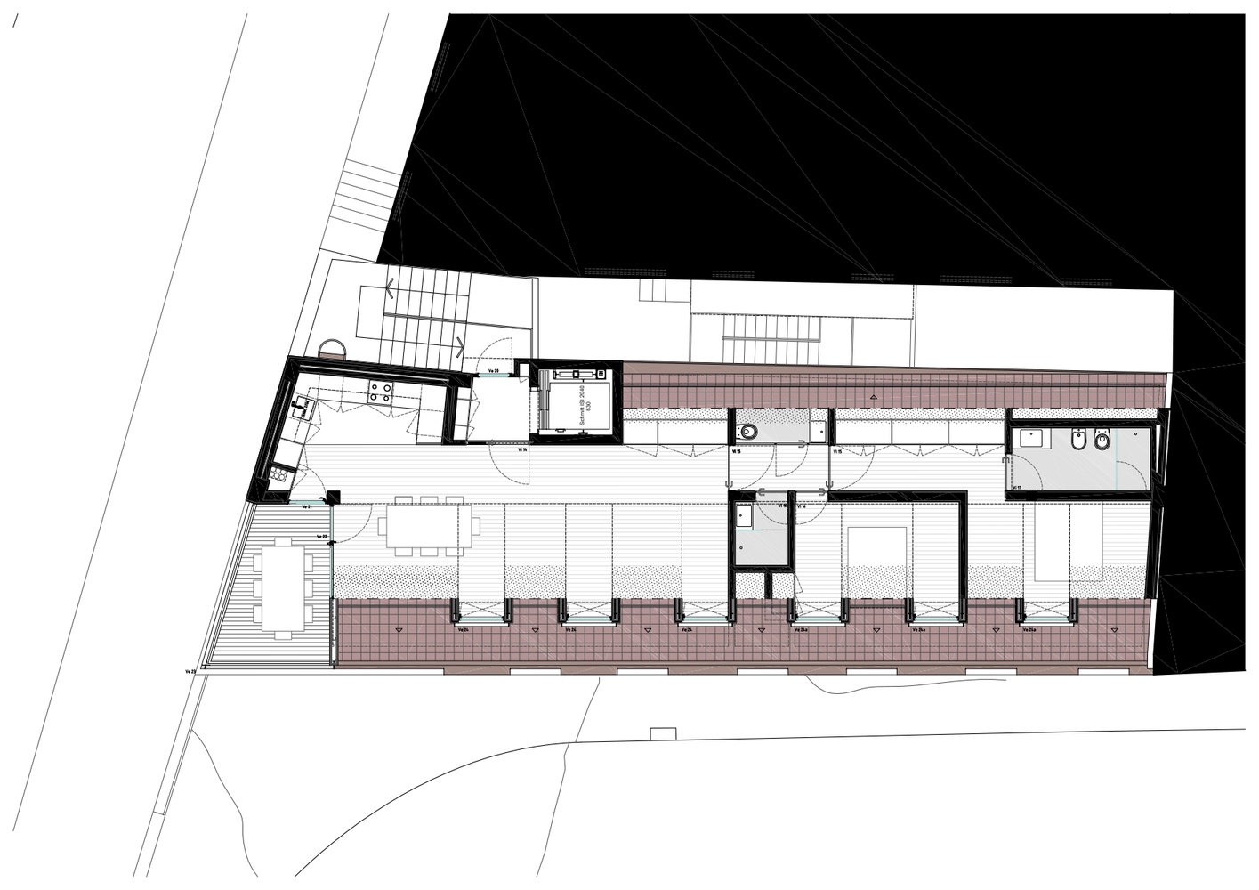
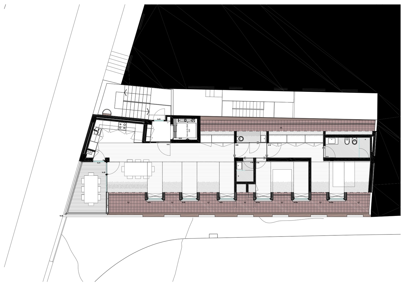
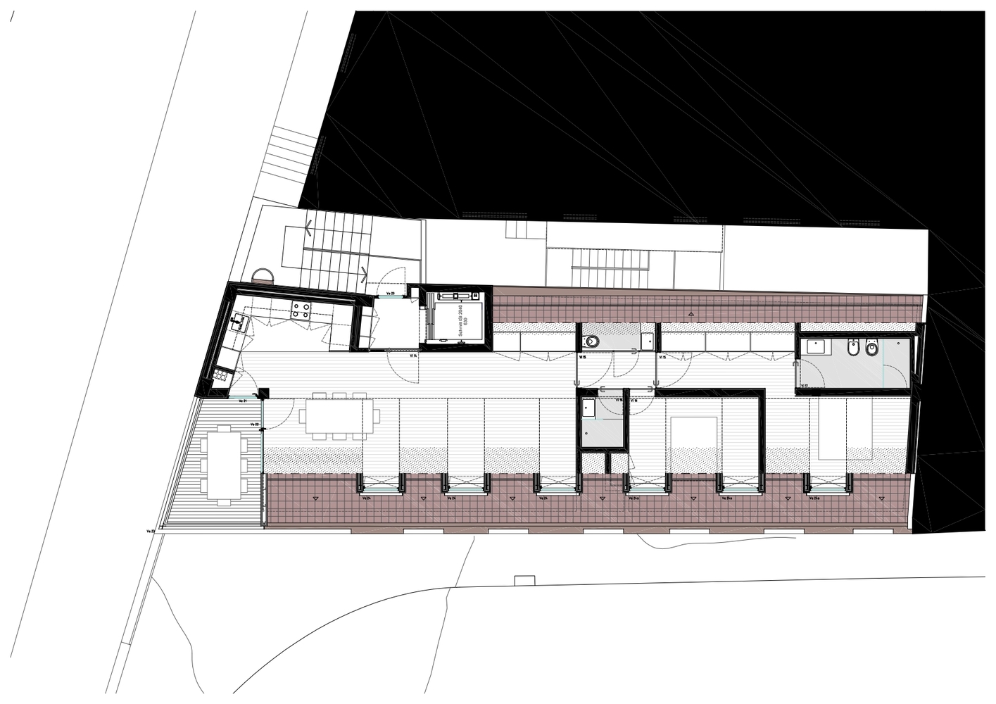
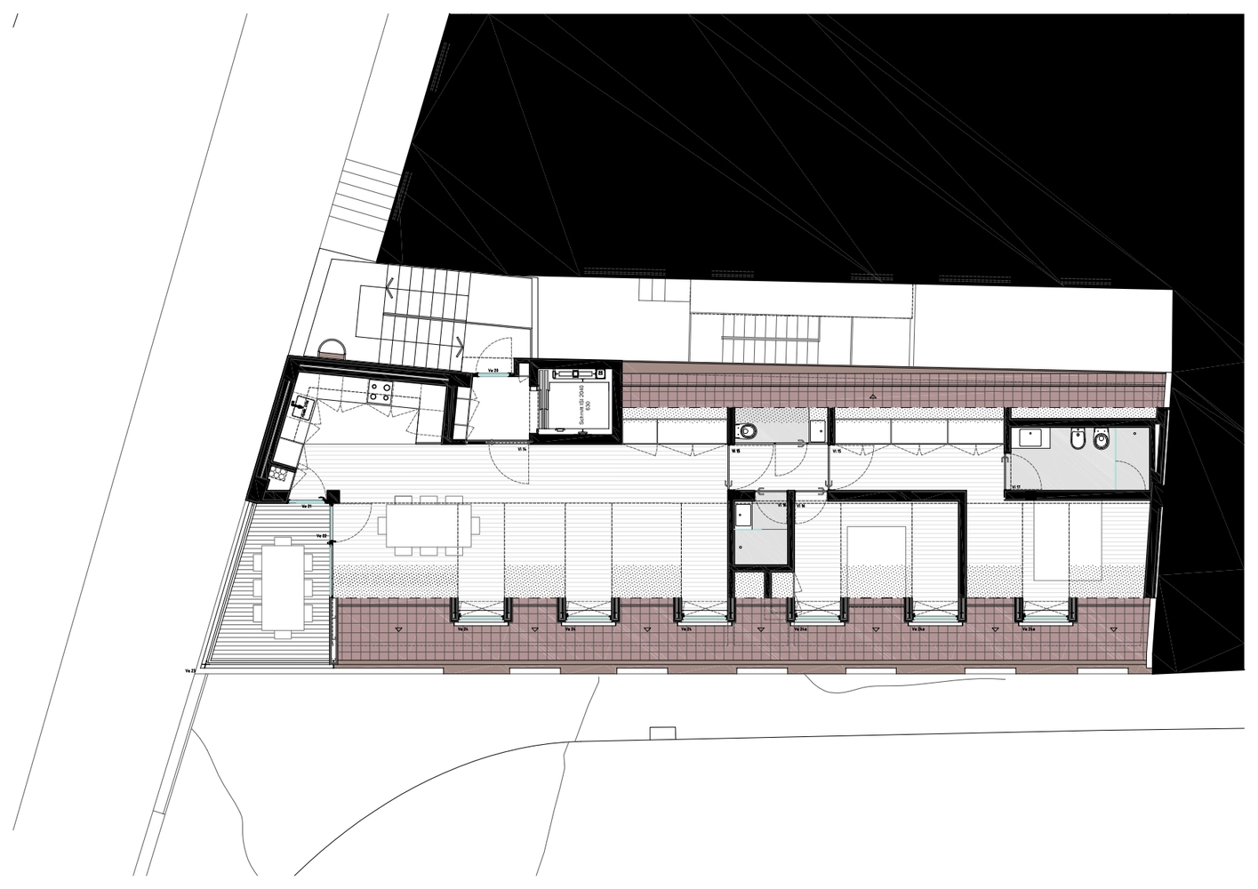
입면디자인 방향은 도시환경에 적극적인 호흡을 위해 동쪽에서 서쪽으로 외관의 개방률을 높여간다. 반복적인 솔리드 외관은 철골구조프레임으로 개방되며 변화한다.
이러한 건물외관은 리스본에서 쉽게 찾아 볼 수 있는 테라스를 만들며, 건물의 서측을 가볍게 디자인, 도시환경과 적극적인 호흡을 유도한다.
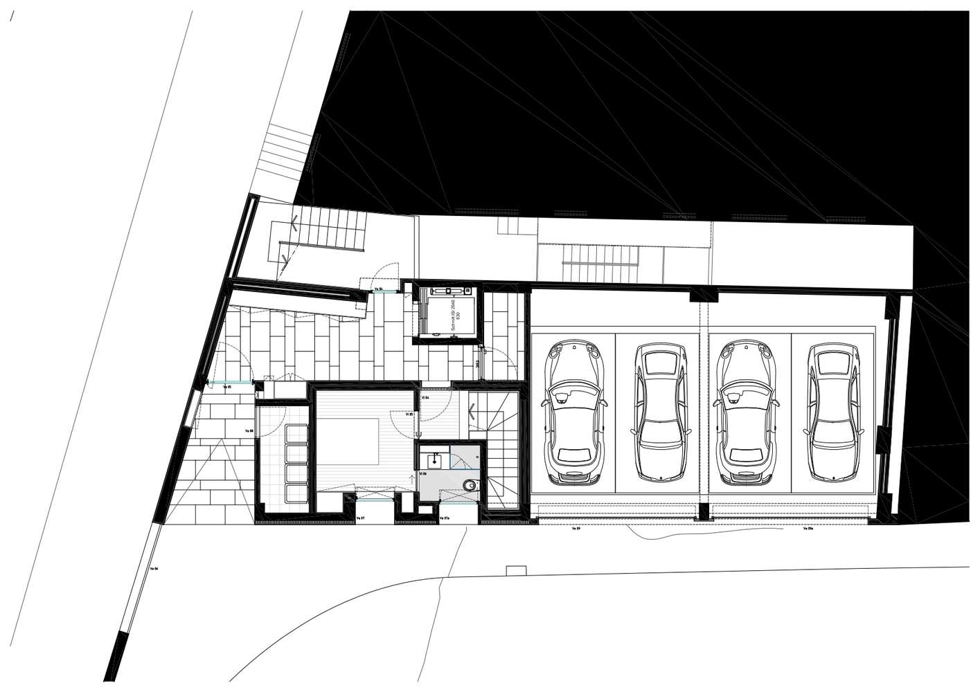
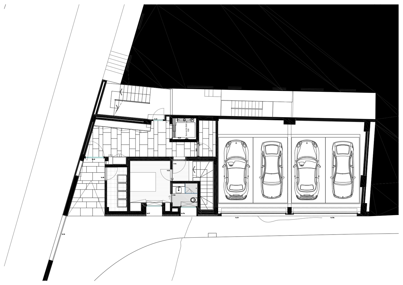
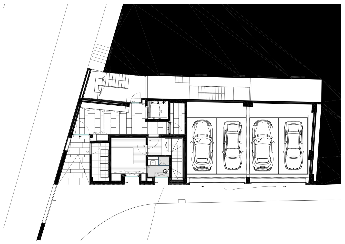
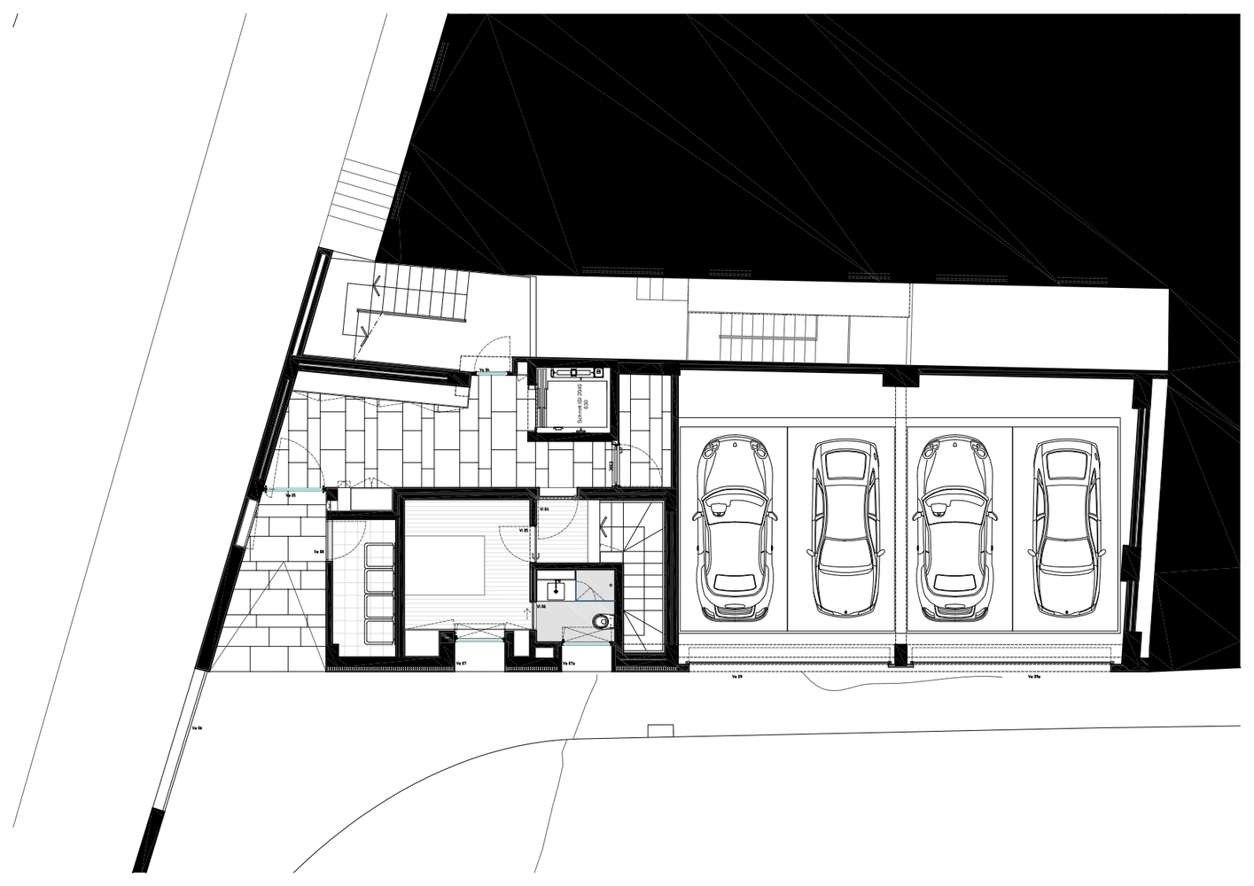
The demolition of the pre-existing warehouse and the construction of this new building on a backed plan allows uncovering a section of the Águas Livres Aqueduct, called Galeria da Esperança. This initiative reveals the urgent safeguard that this monument lacks in its parallel route to the São Bento Street since it’s sunk in the hillside under a number of buildings.
On the other hand, it proposes an evolutionary morphology towards the historical urban context, constituting a formal synthesis as a tail-end of the block. It´s the closure and the transition to the void on the west side next to the aqueduct and the neighboring buildings implanted in a much lower level, about 10m below the street.
In this sense, a façade solution (on the Travessa do Noronha side) aims a gradual dematerialization in the west direction, allowing the structural skeleton to appear, until it is bare at the southwest corner. Consequently, this corner has a vertical row of terraces, as an analogous image to the metallic structures of the balconies that swarm almost every block in Lisbon. This solution also lends a lightness that emphasizes the natural environment on the West side of the building.
On the east side, the façade is closer to the traditional window design spans in a rigid vertical metric. The materials chosen, whether ceramic roof tiles or the facade cream cladding relates to the materials palette of Lisbon.

























from achdaily
'House' 카테고리의 다른 글
| *툴박스 하우스 [ YYAA ] Toolbox House (0) | 2021.07.30 |
|---|---|
| *원파크 드라이브 new images revealed of herzog & de meuron's 'one park drive' tower in london (0) | 2021.07.28 |
| *작은집들 [ SUPPOSE DESIGN OFFICE ] House in Odaka (0) | 2021.07.26 |
| *콘크리트 중정하우스 [ Gardini Gibertini Architetti ] HV Pavillon (0) | 2021.07.23 |
| *뷰 맛집 하우스 케이 [ Dietrich | Untertrifaller Architekten ] house k (0) | 2021.07.22 |