
![]() |
![]() |
![]() |
Atelier Andy Carson finishes coastal home in Sydney with stone and bronze
시드니에 위치한 비치하우스의 인상적인 장면은 대지에 순응하는 저층부와 바다 뷰에 대응하는 상층부의 앙상블에 찾아 볼 수 있다. 절제된 건축공간의 과감한 곡선의 만남은 고유한 디자인환경을 표현한다.































A curved bronze facade sits atop a sandstone podium at this home renovation in Sydney, Australia, designed by local architecture studio Atelier Andy Carson.
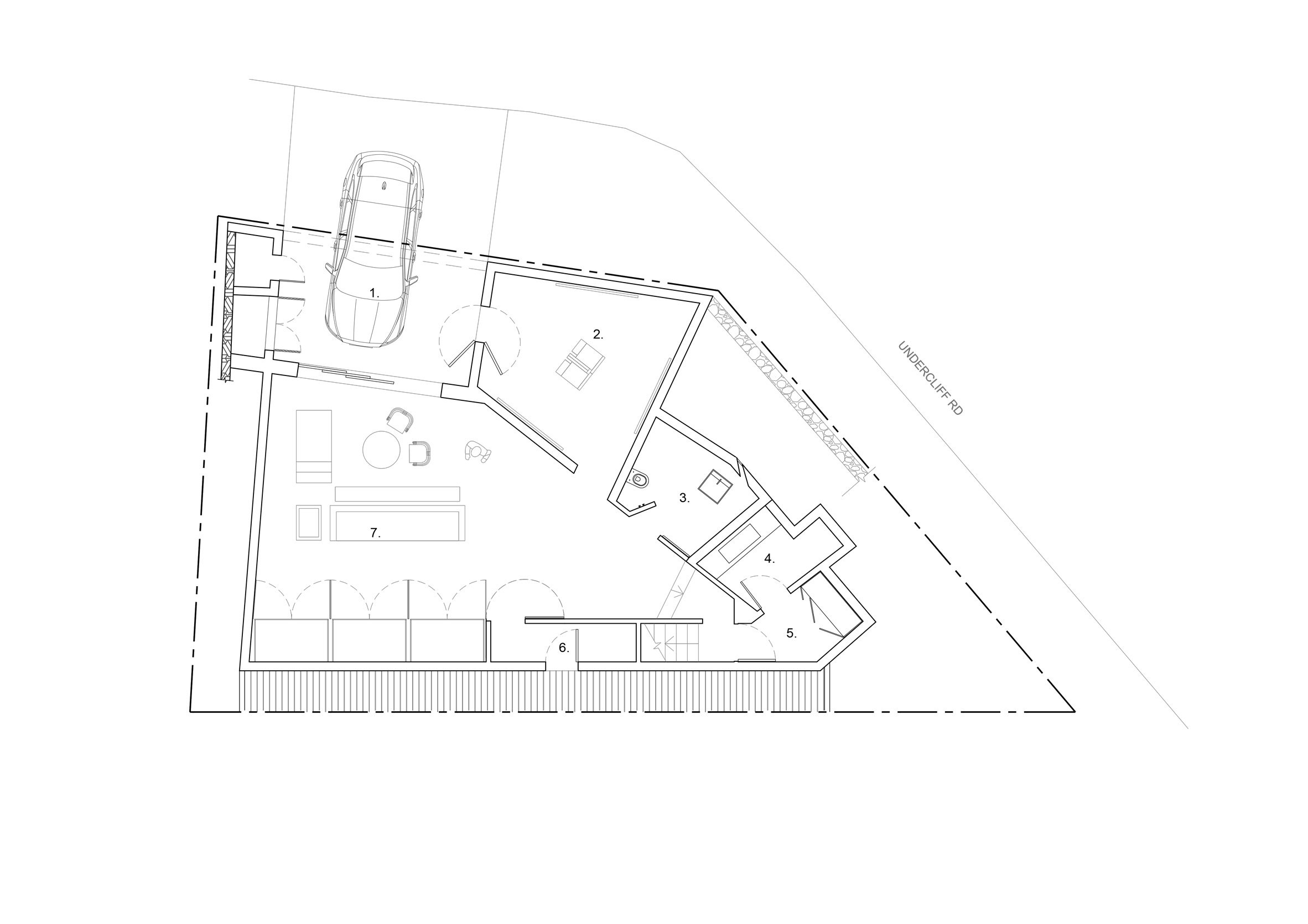
Called Matopos, the home designed for the gallerist Judith Neilson involved a complete overhaul of an existing structure on the 178-square-metre corner plot, which overlooks a beach in the Sydney suburb of Freshwater.
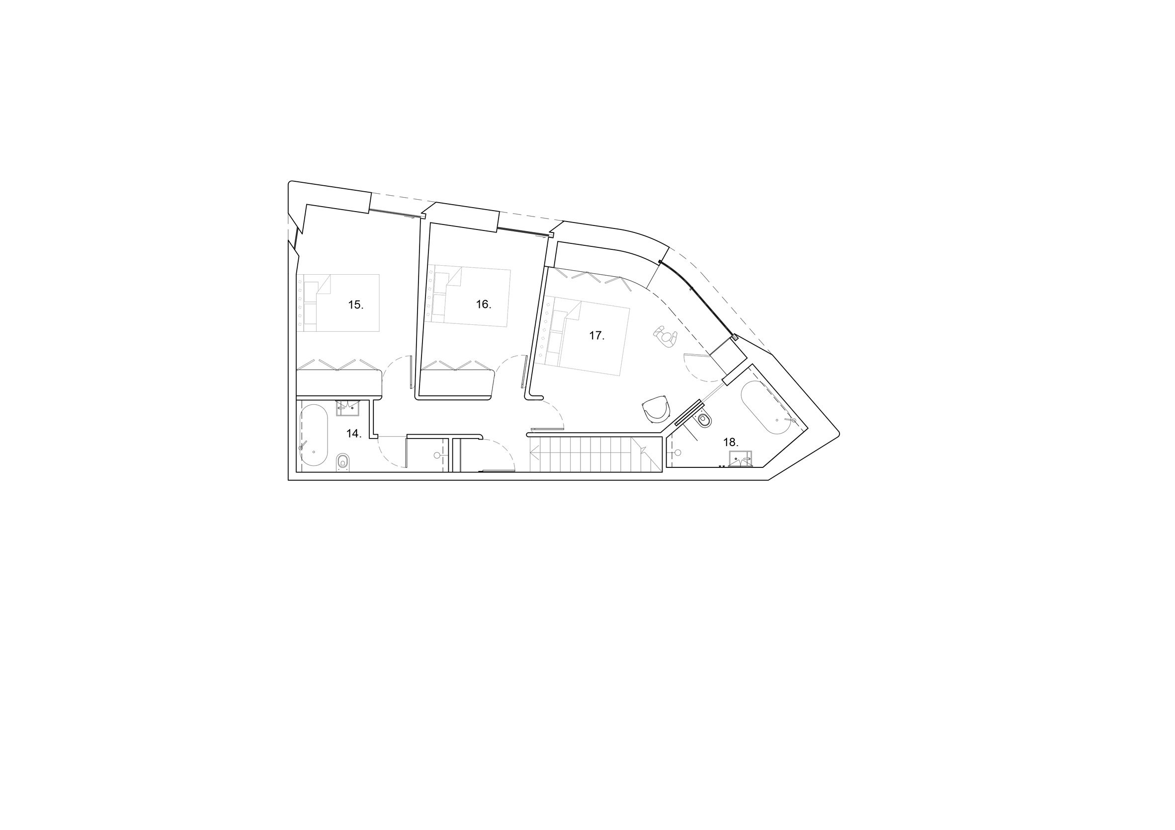
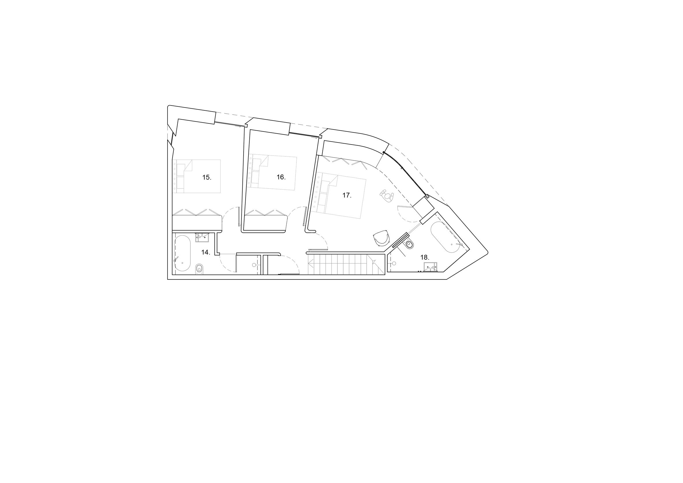
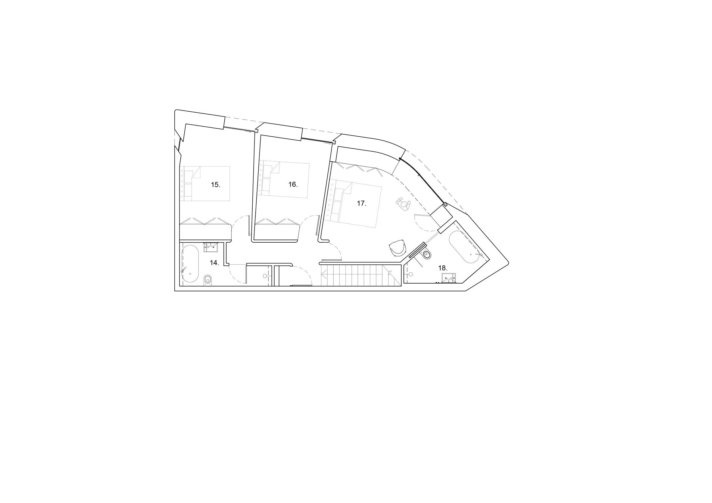
In order to better connect the home's interiors with the surrounding landscape, its new upper storey features a series of deep window reveals, creating a large window box in the bedroom looking out across the beach and sea.
"The existing building didn't celebrate its relationship with its breathtaking surroundings... we sought to open the interiors to very focused views and create a material palette that spoke to its location," said the studio.
"Thoughtfully placed windows frame vistas of the sea, while polished plaster interior walls reflect views of the blue and yellow hues of ocean and sand back into the home."
The material palette of the exterior was informed by a nearby statue of Duke Kahanamoku – a Hawaiian who popularised surfing in Australia in the early 20th century – made of bronze atop a stone base.
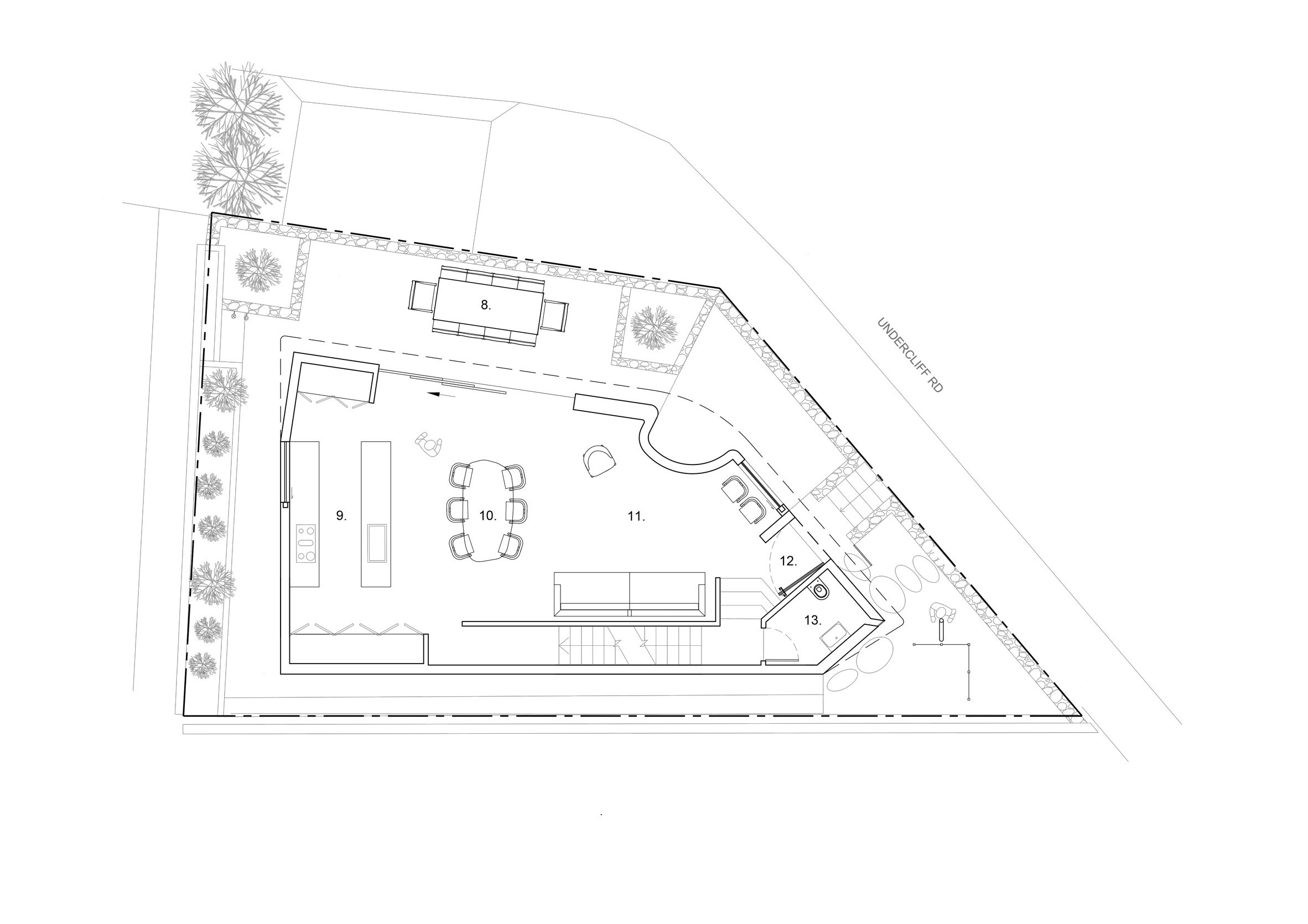
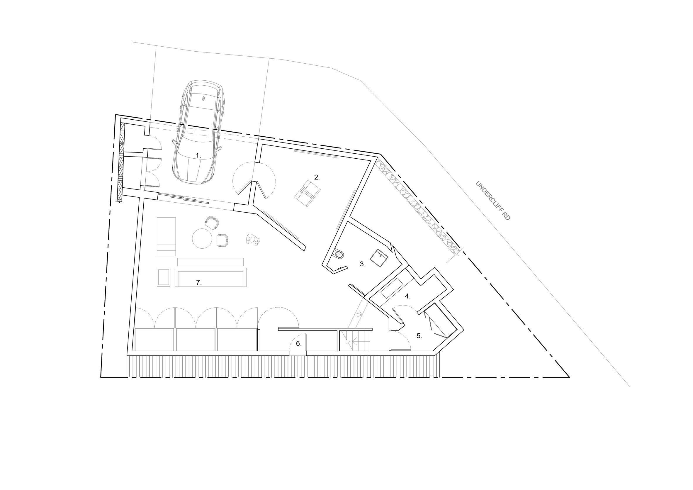
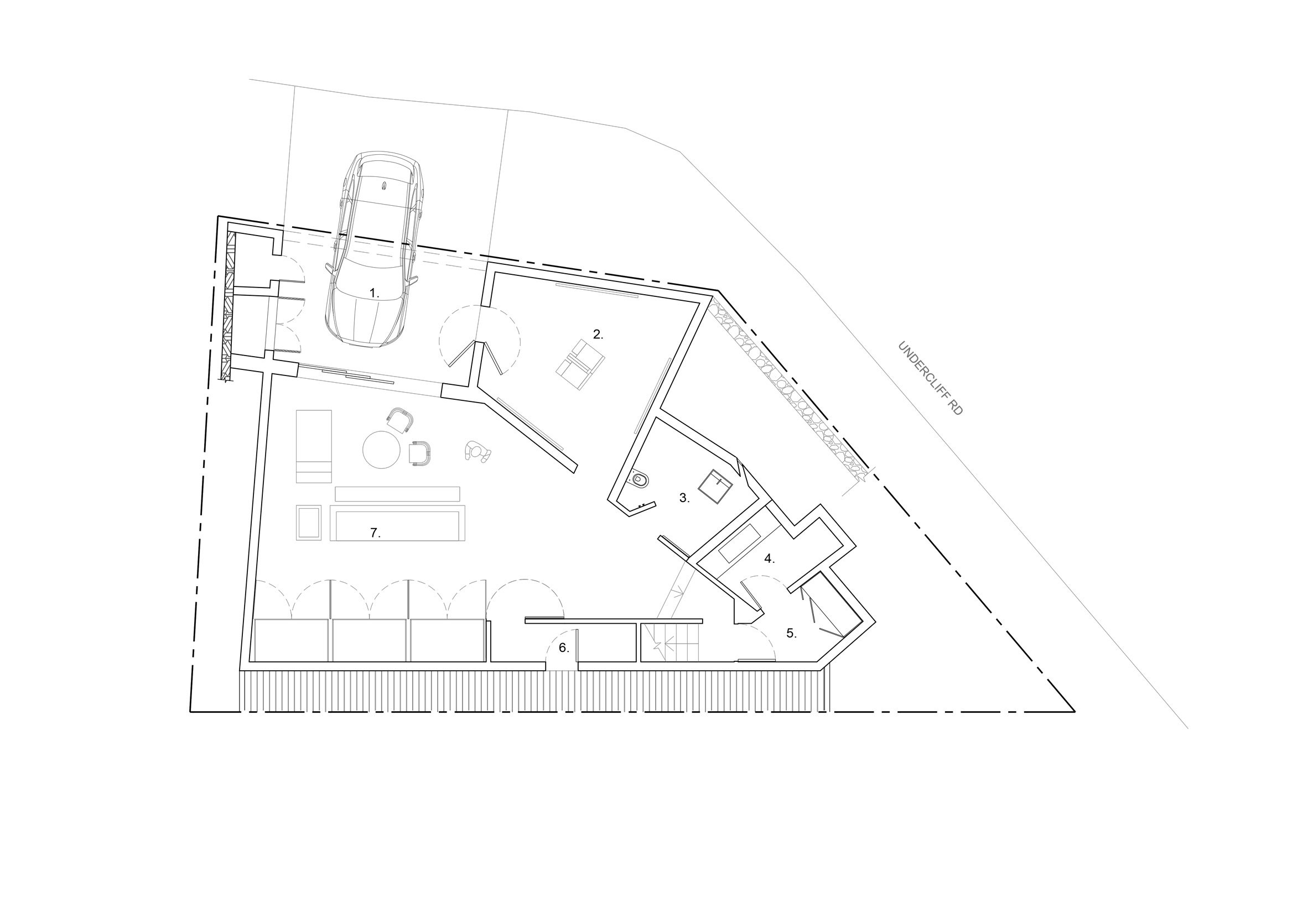
Matopos' sandstone base creates a buffer between the home and the street, providing space for a garage and planters wrapping a more intimate lounge space on the lower ground floor.
Above, the ground floor is wrapped by thin grey bricks and contains a single large living, dining and kitchen area which opens onto a courtyard raised atop the stone base through sliding glass doors.
On the bronze clad first floor, three bedrooms are arranged along the gently curving northeastern edge of the home, giving each a view out towards the sea.
from dezeen


