728x90

![]() |
![]() |
![]() |
dmarchitects-Nhaso 27 House
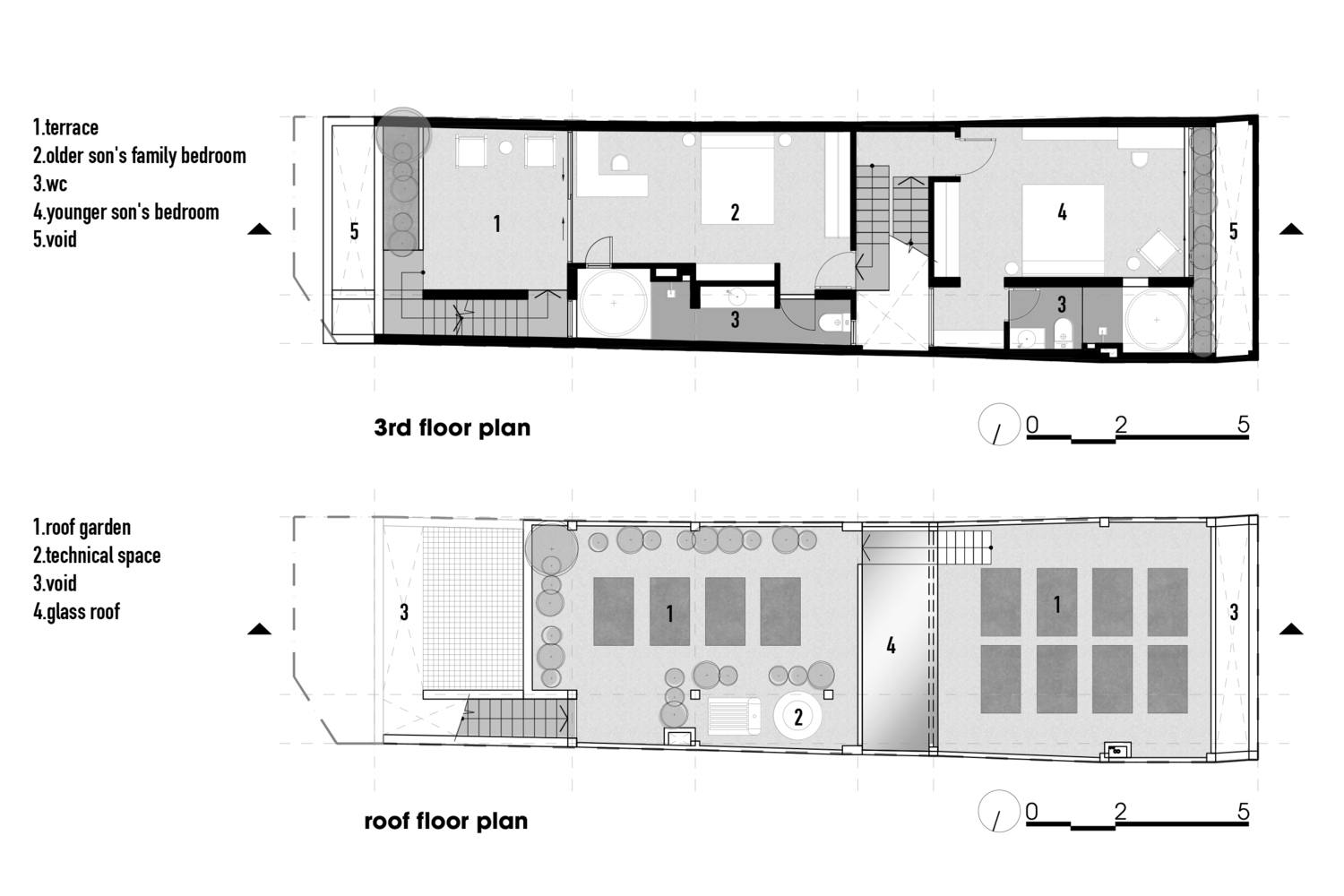
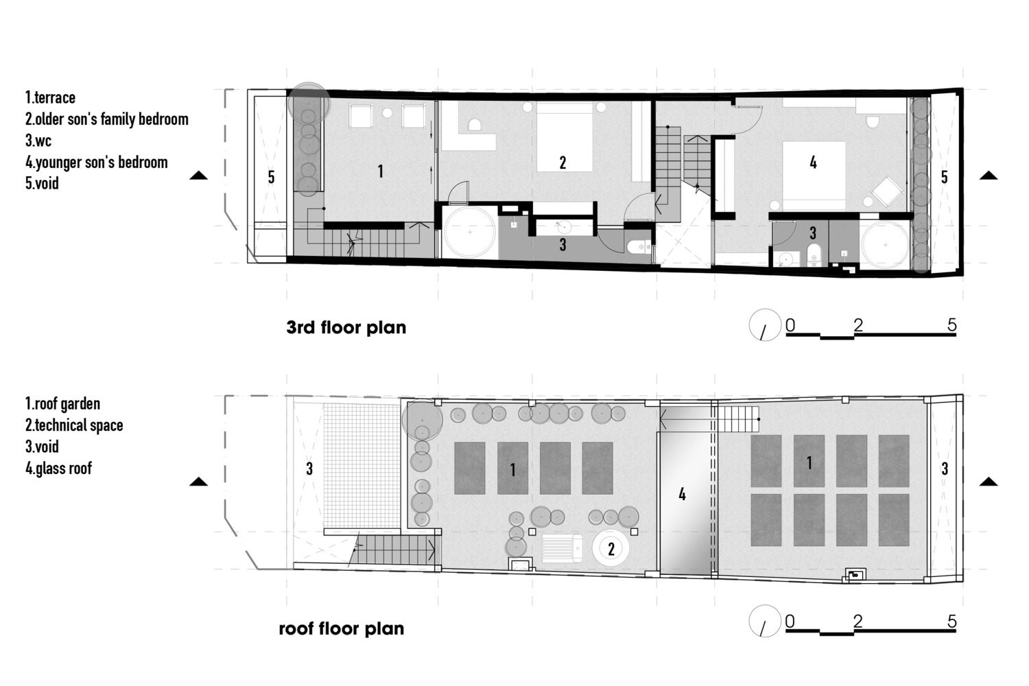
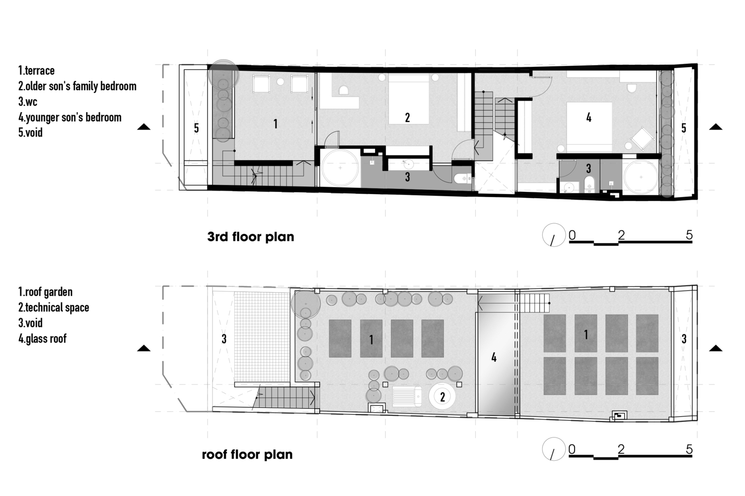
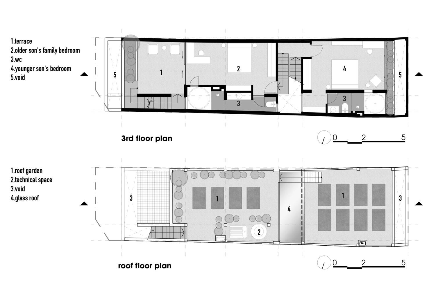
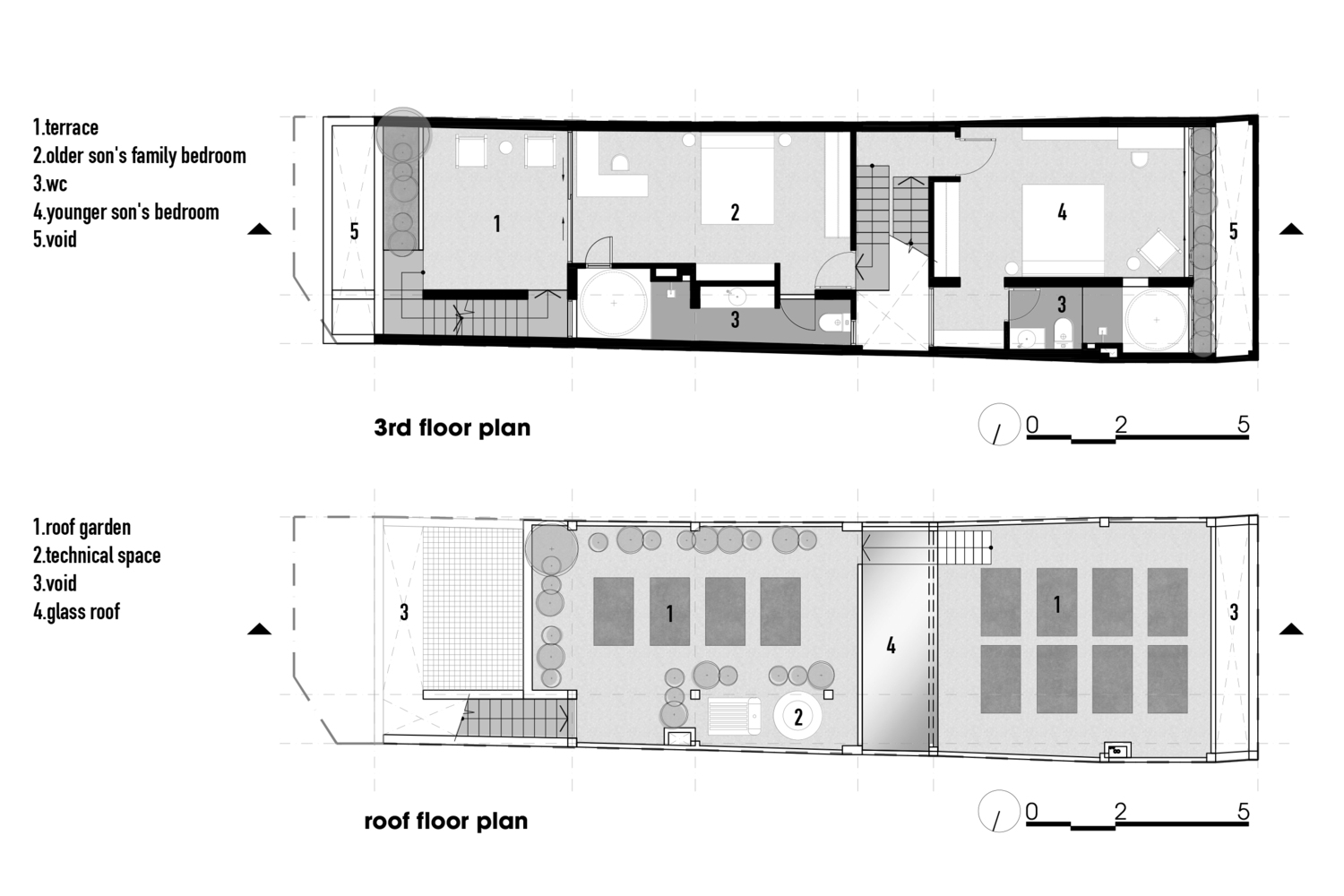
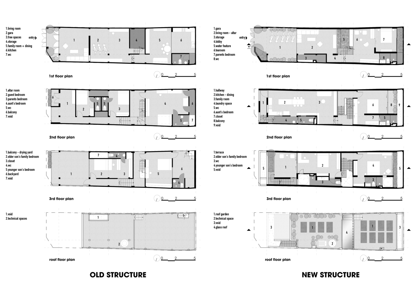
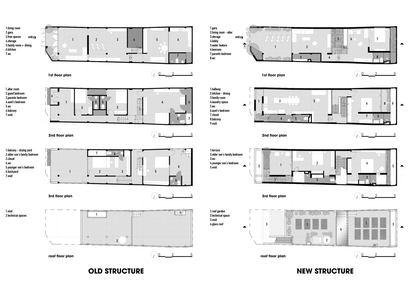
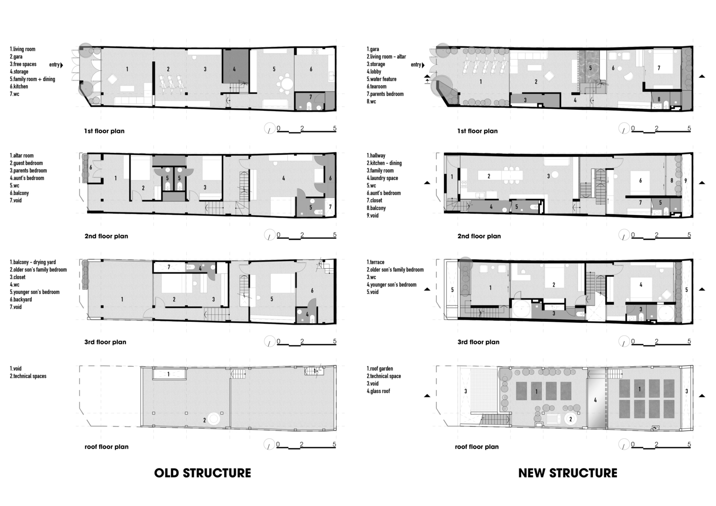
베트남 특유의 덥고 습한 기후를 대응하기 위해서는 막힘없이 열린 공간을 통해, 환기를 원활하게 만드는 것이 중요하다. 40년된 오래된 주거의 리노베이션 작업은 이러한 공간구현을 목적으로 열린거주공간을 완성한다. 스플릿레벨로 자리한 공간은 침실과 공용공간을 가운데 위치한 계단을 기점으로 번갈아 가며 배치된다. 특히 백색공간을 바탕으로 적용된 레드컬러는 계단을 비롯한 포인트되는 장면에 적용하여 은율감있는 건축을 완성했다.





































from archdaily
그리드형


