
![]() |
![]() |
![]() |
VON M-HS77 Stuttgart Apartments
거리에서 볼때, 두개의 단독주택은 데칼코마니처럼 보인다. 앞에 위치한 작은 정원, 플로워 투 실링의 거대한 창문, 최상층에 위치한 작은 테라스와 1층에 위치한 긴 출입구까지 동일하게 구성되었다. 공장제작되는 주요부재는 현장에서 일어나는 공정을 간소화하는 동안, 그 특유의 연결방식이 나타난다.

















The land we live on is a non replicable commodity. In many cities and communities, space for housing is becoming scarce. This is because, despite the correct statement that our cities are largely built, i.e. on average in Germany there is enough living and working space available, this existing space is often not in the right place. Especially in economically prospering settlements, living space is needed. Due to the local economic system, the available land is subject to constant speculation and the associated price driving. Since 1962, the Federal Statistical Office has been recording the development of building land prices in this country: by 2017, there was an increase of 2,308 percent. Land prices are getting more expensive, and with them construction costs.
The period since the start of the covid pandemic has also shown that we need to fundamentally rethink the structural configuration of our living spaces. After all, architectural modernism had proposed dividing the spaces of our lives into production and reproduction, that is, work on the one hand and recreation on the other. Now it is becoming apparent that this division is neither particularly practicable nor can it be maintained everywhere and at all times. This principle must also be called into question in view of the traffic flows that are developing. But this requires floor plans that allow for different types of living. Our dwellings would have to be designed in such a way that they can be adapted to the respective needs of their occupants, adapted according to the phase of life and adjusted again and again. In this way, flexible floor plans could make it possible to stay in one place, even if one starts a family, the family grows larger and becomes smaller again, or enters into another form of living and residential community.
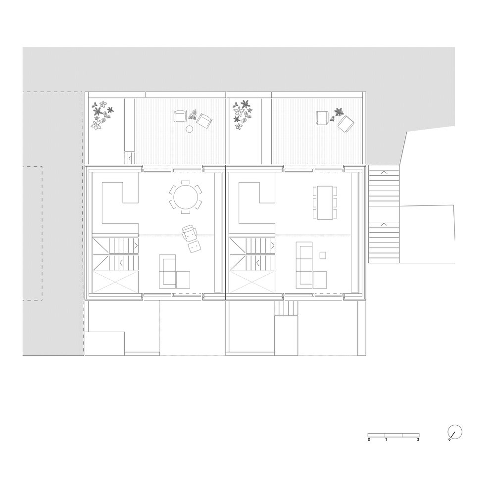
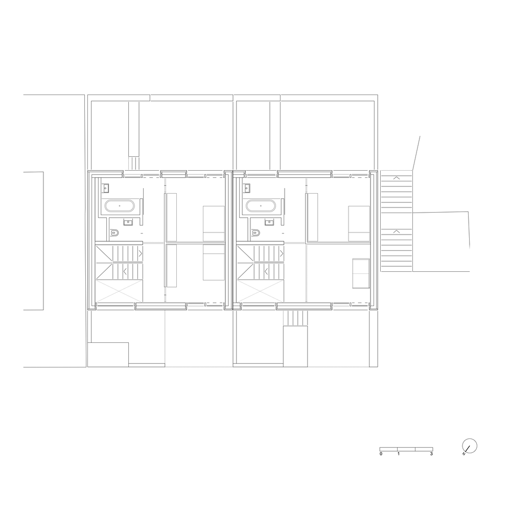
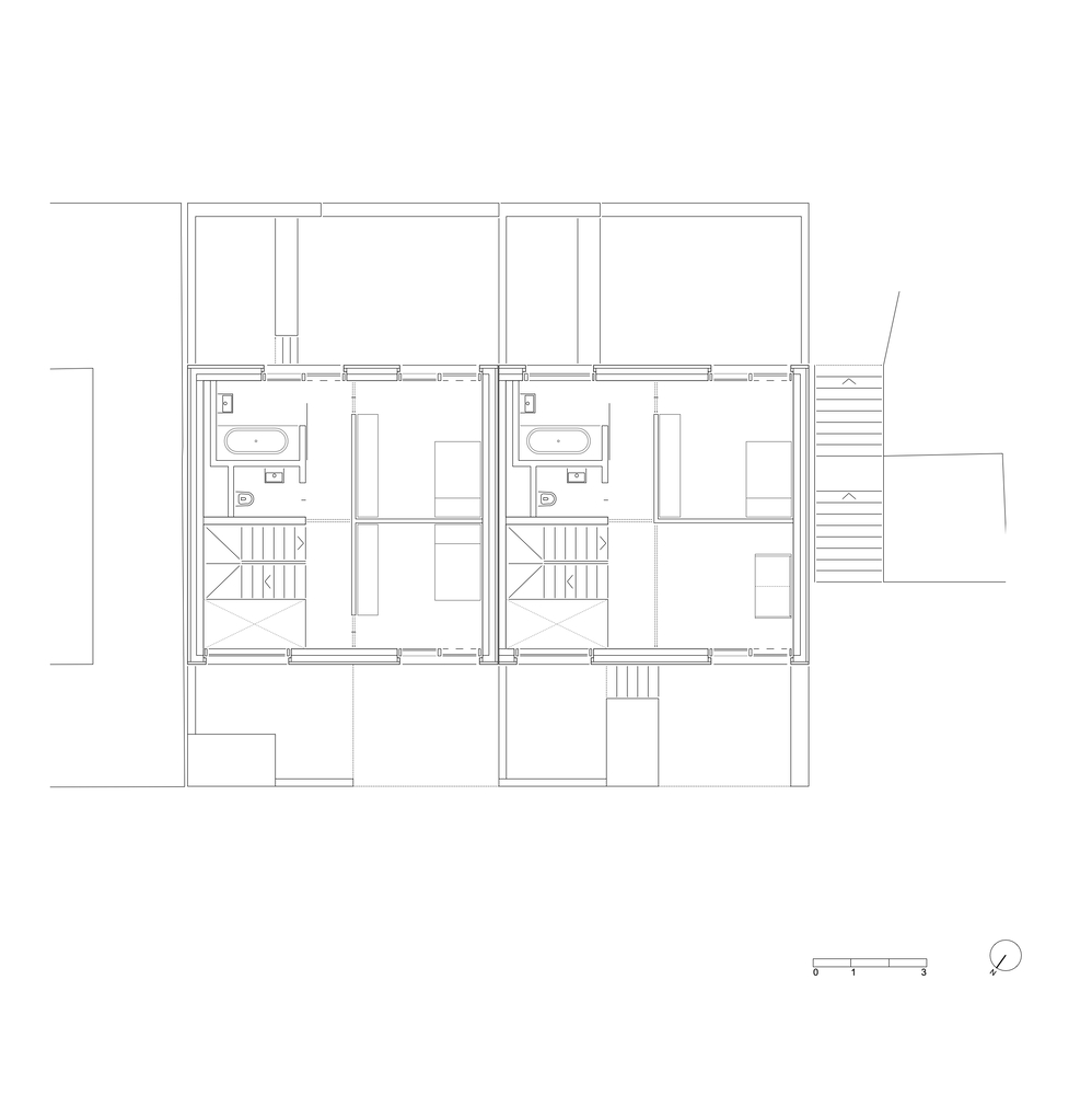
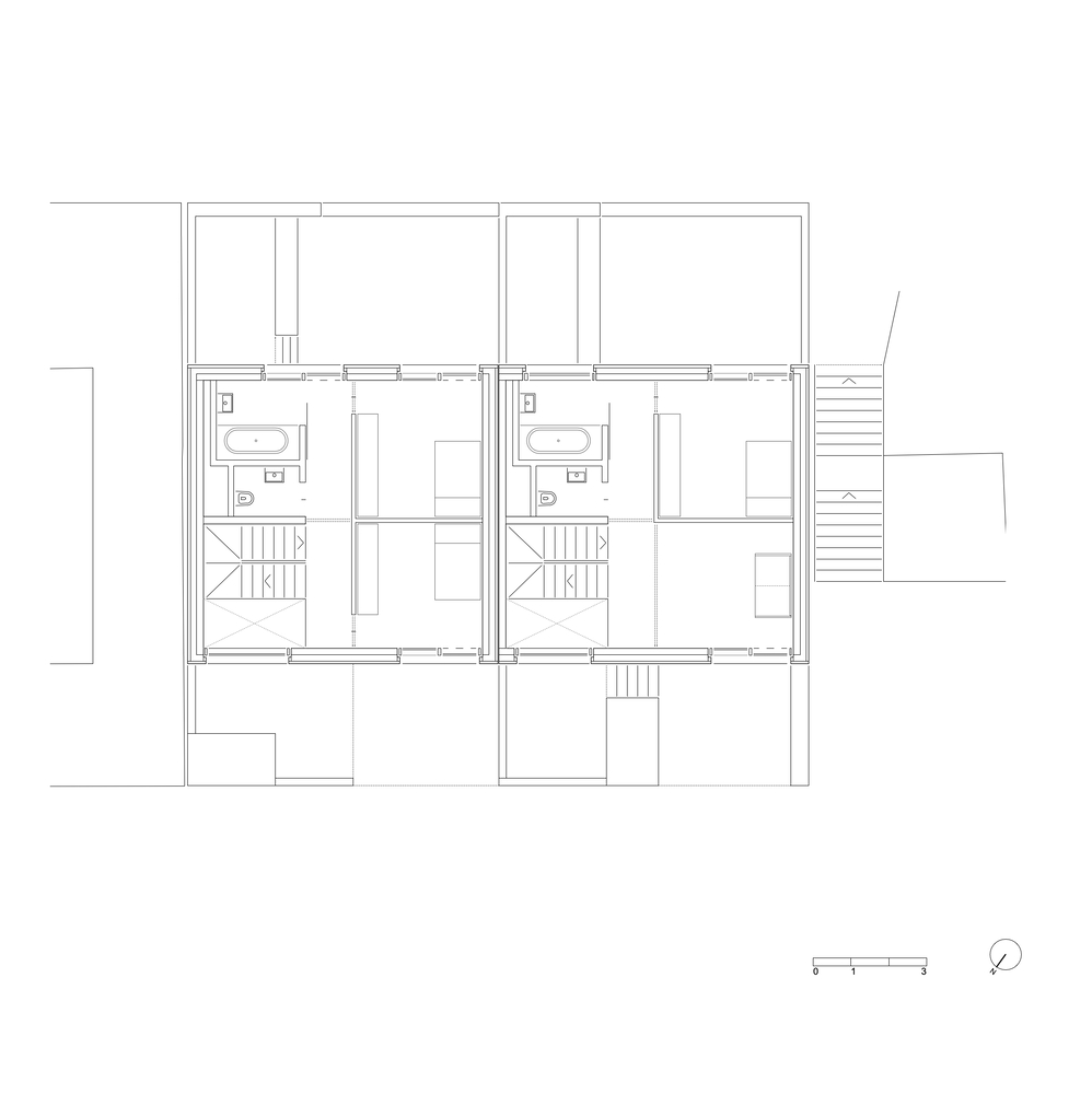
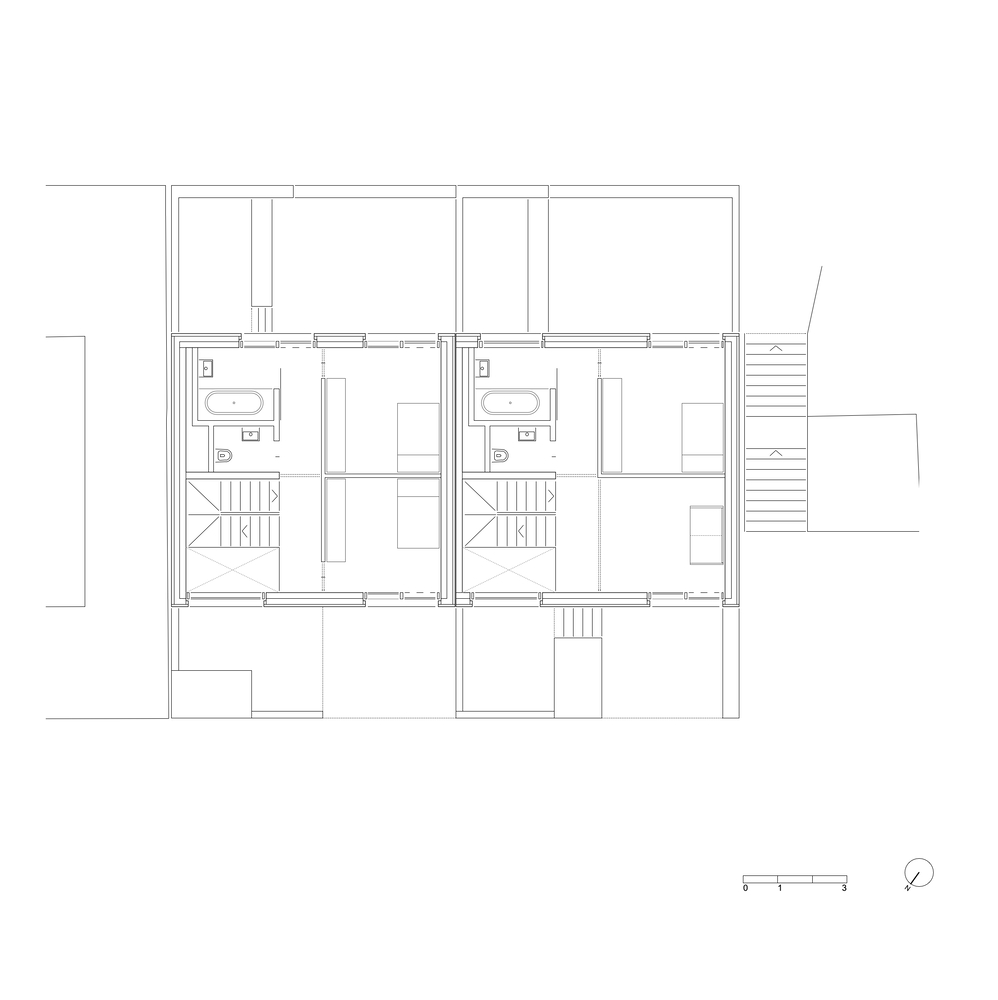
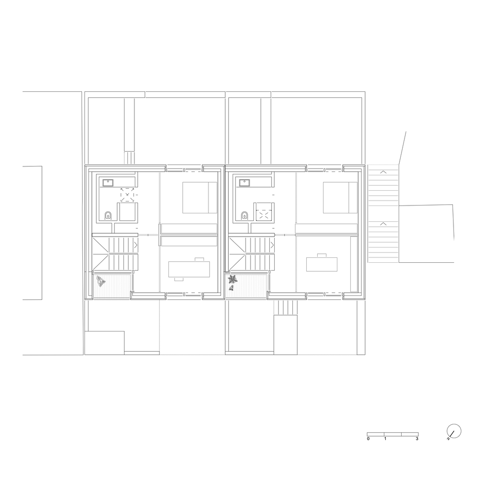
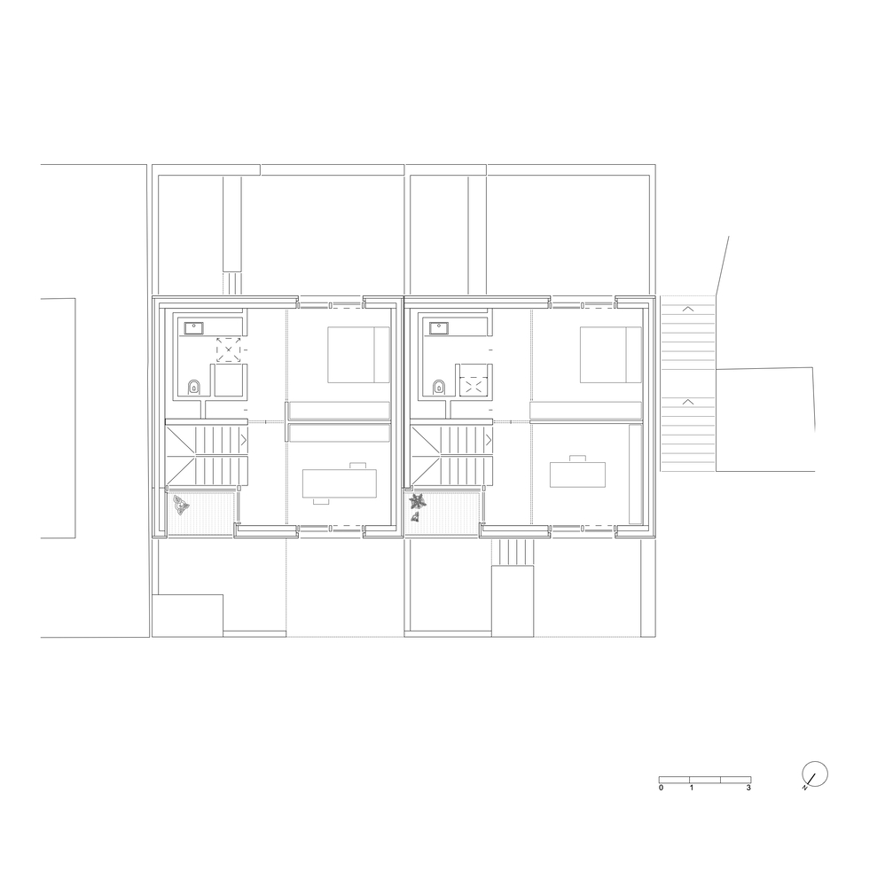
In Stuttgart South, on one of the Heslach slopes, the VON M office has found one of those still open plots of land that are becoming so rare in the city. Because of its topography, on a slope that rises sharply to the south, it was long considered almost impossible to build on. The architects have developed two almost identical houses, each with an almost square floor plan. The design incorporates both the eaves height of the neighboring house to the east and its building depth as a scale-setting element. Since the building had to dig up to three stories into the ground due to the extreme slope of the site, it was quickly determined that a large part of the house would have to be built in concrete. To keep planning and construction costs low, VON M developed a catalog of simple details and joints using precast concrete elements that now characterize the entire duplex.
Aware of the difficulties of the building material with regard to its CO2 emissions, the architects then developed a flexible interior for the robust concrete shell with the aim of enabling different floor plan variants in the extension, which would also allow conversions in the future. To this end, they established a cruciform floor plan scheme that allows for different options of interior space joining with light curtains, wooden partitions or cabinets. Even if the respective places in the floor plan are not occupied by a wall, wooden strips embedded in the floor indicate the scheme and provide subtle zoning of the rooms. This not only ensures that the actual floor plan variants in both houses are adequate for the respective residents, but also that the residents can still make changes in the future that correspond to the changes in their respective living circumstances.
from archdaily
'House' 카테고리의 다른 글
| *벽돌 나무 레이톤 하우스 [ McMahon Architecture ] Leyton House (0) | 2022.11.18 |
|---|---|
| *그란지 레지던스 [ Conrad Architects ] Grange Residence (12) | 2022.11.17 |
| *프록힐 홈스테드 [ Warren & Mahoney ] FlockHill Homestead (0) | 2022.11.10 |
| *집 위에 집 Nicole Blair lifts Austin guesthouse above existing bungalow (0) | 2022.11.09 |
| *베트남 스플릿 하우스 [ dmarchitects ] Nhaso 27 House (0) | 2022.11.07 |


